切换到宽版
  • 6阅读
  • 1回复

[奇观]北京马刺画廊 / BUZZ建筑事务所//上海乌鲁木齐南路176号安康公寓保护修缮 / 华东建筑设计研究院有限公司历史建筑保护设计院[52P] [复制链接]

上一主题 下一主题
在线jjybzxw

UID: 551814

 

发帖
220965
金币
685795
道行
2006
原创
2450
奖券
3340
斑龄
42
道券
1233
获奖
0
座驾
设备
摄影级
在线时间: 48034(小时)
注册时间: 2008-10-01
最后登录: 2026-01-23
只看楼主 倒序阅读 使用道具 楼主  发表于: 2小时前
北京马刺画廊 / BUZZ建筑事务所[31P]


马刺画廊©朱雨蒙
作为最早进驻798艺术区的先锋画廊之一,马刺画廊的发展轨迹与这片艺术区的成长历程深度交织。自2000年代初由贾伟与皮力创立以来,它不仅是798艺术生态的见证者,更以其合作的先锋艺术家群体及以平面艺术、影像作品为主的藏品体系,成为构建中国当代艺术发展的重要视觉档案,是中国当代艺术早期的先锋实验场。在二十年的运营中,马刺画廊记录了中国当代艺术的发展脉络,其本身的变迁便是798艺术区发展史的生动切片——从早期艺术区的开荒拓土,到如今成为国际瞩目的艺术地标,马刺画廊始终以文献性的姿态,留存着当代艺术的多元表达。

改造前的主立面©马刺画廊

改造前的马刺画廊
然而,时光流转中,原有空间逐渐暴露出诸多亟待优化的问题:首层展厅内的结构柱虽成为固有空间标识,但长期使用后缺乏新鲜感;通行区域闭塞逼仄,导致上下层体验存在明显断档,二层空间利用率持续偏低;首二层之间缺乏有效关联,虽能满足分层独立展览需求,却难以形成整体空间联动,无法适配更大规模、更具叙事性的展陈内容;更值得注意的是,初始建设阶段的细节处理较为粗放,部分优质空间未得到充分利用,储藏空间不足、办公空间局促,接待功能区域也未能有效激活,这些因素共同推动了本次马刺画廊的整体升级改造。

原建筑空间示意图
从策展视角而言,马刺画廊的核心价值在于其藏品的文献记录属性与艺术史意义。这里的每一件平面作品、每一组影像档案,都承载着特定时期的艺术思考与社会语境,策展工作的关键在于让这些作品“活起来”——不仅是物理层面的陈列,更要构建作品与观众、作品与空间、作品与时代的深层对话。原有空间“平铺直叙”的单一模式,使得展览缺乏叙事节奏,作品的文献价值难以充分释放。因此,策展人期待的改造,是能够跳出单一平面陈列逻辑,形成兼具灵活性与叙事性的空间载体,既为多元艺术形式提供适配的展示土壤,也能引导观众以更沉浸的方式阅读艺术史的片段。

马刺画廊街景(图片源自网络)

马刺画廊周边-当代唐人艺术中心;颂艺术中心;常青画廊 (图片源自网络)
同时,马刺画廊所在的街道位于798核心画廊聚集带,与当代唐人艺术中心、颂艺术中心等新老艺术空间共同构成了具有强烈城市界面特质的艺术街区。如何在呼应周边场域、延续798街区艺术记忆的基础上,形成兼具对话性与一致性的街道界面,让马刺画廊既保留自身辨识度,又融入整体艺术生态,成为本次改造需考量的核心前提之一。

马刺画廊夜景©朱雨蒙

二层展厅©朱雨蒙
基于对画廊历史价值、空间痛点与策展需求的深度理解,本次改造设计围绕四大核心目标展开:
其一,结合平面艺术与影像作品的展示需求,构建立体游园式空间体验。以移步异景的叙事逻辑,让每一幅作品与空间场景深度融合,营造类似园林观景的沉浸式氛围,使观众在行走中逐步进入艺术叙事,而非被动接收信息;
其二,提升空间灵活度,为策展人与艺术家提供更多元的创作与呈现可能。打破固定空间格局的束缚,赋予空间重新定义的开放性,让不同风格、不同规模的展览都能找到适配的呈现方式;

Rm68©朱雨蒙

二层展厅©朱雨蒙
改造后首层体量生成分析图
其三,强化首二层空间联动,有效利用顶层高窗将天光引入室内。原本被忽视的自然光线,将成为新马刺画廊的标志性空间特质,为展陈增添更多光影层次与情绪表达;
其四,延续画廊的经典性基因。通过内敛式的空间节奏设计,实现“既似原有、又焕新生”的体验——让空间既消隐于艺术作品之后,仿佛本就该如此存在,又通过轻重缓急的节奏变化,既有开敞通透的区域,亦有紧凑围合的场景,使展览能够自然徐徐展开。

首层售卖空间©朱雨蒙
前台©朱雨蒙

改造后二层体量生成分析图
从建筑师视角出发,改造的核心是通过结构优化与空间重构,将上述目标落地为可感知的物理空间。首先对原有结构进行系统梳理,在确认承重可行性的基础上,移除了首层展厅中间的结构柱——这一举措在保持原有层高不变的前提下,彻底放开了首层展陈空间,为通透开放的空间体验奠定基础。入口处营造无遮挡的通透界面,同时保留了入口左侧的独立Rm68小展厅(其专属独立内容属性得以延续),通过立面的虚实处理形成大小洞口的组合关系,构建出第一重空间层次。

主入口夜景©朱雨蒙

主入口夜景©朱雨蒙

主入口立面图
入口内侧设置衍生品售卖空间,以通高的壁龛式形态赋予空间仪式感与归属感,既满足功能需求,又成为空间叙事的过渡节点。设计巧妙利用空间转折、小型洞口及展墙结构的呼应关系,形成厚实台口与错落空间的多重对话;结合通高空间与干净清透的上行阶梯,通过垂直向设计塑造出当代艺术的殿堂感,同时进一步强化了前场空间的层次与纵深感。针对原有空间缺乏序厅的问题,首层新增引言区域,以温和的引导性设计,将观众自然导入主展区,完善了展览的叙事开篇。

画廊首层©朱雨蒙

画廊首层©朱雨蒙

首层轴测图
二层主展厅经重构后,呈现出高敞通透的空间特质,充分呼应原有建筑的屋顶结构与采光条件,与首层相对低矮规整的空间形成鲜明对比。这种空间差异不仅丰富了体验层次,更让策展人可根据艺术风格与展陈需求灵活选择——光线强烈、空间高挑的区域适合大型装置或需要突出视觉冲击的作品,而光线稍暗、更为规整的空间则适配细腻的平面艺术与影像展陈。同时,二层高空间也为多元活动提供了可能,无论是开业酒会、艺术论坛,还是校际交流联展(如与耶鲁大学的学生联展),都能在此找到合适的呈现形式。

画廊二层©朱雨蒙

二层展厅©朱雨蒙

首层轴测图
此外,通过局部层高变化与内部景墙划分,在规整空间中营造出更丰富的层次。办公与接待功能得到全面优化:切割出不同量级、兼具公共性与私密性的接待空间与办公区域,使其与二层展厅形成有效互动,既满足日常运营需求,又保障了艺术交流的舒适性;首层新增的储藏空间,则完善了馆藏与展示空间的流线关系,让藏品管理与展陈切换更为高效,从根本上提升了画廊的运营效率。

首层序厅©马刺画廊

首层展厅©马刺画廊
整个改造始终秉持“放松且消隐”的设计理念——建筑师认为,优秀的艺术空间应将核心话语权交还艺术家与策展人,而非成为建筑师自我表达的舞台。设计以“空间为载体、场域为脉络”,既延续了798的历史积淀与周边场域的能量关联,又保留了原有马刺画廊的空间记忆,更赋予其全新的生命力。

二层展厅©朱雨蒙

二层展厅©朱雨蒙
如今的马刺画廊,在798的艺术脉络中完成了一次温柔而坚定的更新。它既承载着中国当代艺术的过往记忆,又以开放包容的空间基底,适配快速变化的当代艺术语境与时代变迁。作为一块持续生长的“画布”,它将不断承接多元形态的新展览、新表达,为艺术家与策展人的创作提供充沛的可能性,让空间与艺术在相互成就中,持续焕发鲜活的生命力。

马刺画廊重装开幕晚宴©马刺画廊

展览照片©马刺画廊

展览照片©马刺画廊
项目图纸



项目信息
项目地点:中国北京
建筑面积:670㎡
设计时间:2024.12
建成时间:2025.5
业主单位:马刺画廊
建筑改造及室内设计单位:BUZZ建筑事务所
项目主创:庄子玉、李娜
设计团队:(建筑) 刘健、(室内) 陈阵东、刘月、丁竹靓、高峥
施工单位:思享营造
照明顾问:开阖照明设计 (北京) 有限公司
建筑摄影:朱雨蒙、马刺画廊
出品图制作:陈阵东、刘月
项目文稿:庄子玉、王珊
========================================================================================================================================

上海乌鲁木齐南路176号安康公寓保护修缮 / 华东建筑设计研究院有限公司历史建筑保护设计院[21P]


内外兼修,更重里子
衡复风貌区之文脉,由城市路网至建筑细部,在时间轴的交织下,点线面交相辉映,形成独一无二的脾性。但时光带来故事的同时也带来了侵蚀:空鼓渗漏,开裂糟朽,脏污斑驳等隐患渐生,令老建筑风采消减。为保护历史文脉、保障宜居质感,秉持“内外兼修,更重里子”—— 2023年徐汇区启动一批居住类优秀历史建筑修缮工程,历保院有幸负责9处建筑的修缮设计。
从公寓之装饰细部,里弄之鱼骨肌理,洋房之端庄古典,这9处优秀历史建筑既是徐汇风貌名片,更是一代人的本底记忆。本篇将从安康公寓开始,为大家讲述我们如何精准平衡风貌保护与民生需求,为建筑活化注入新的动力。
01.
项目概况
安康公寓原名巨福公寓,建于1930年代,建筑共6层,2005年被公布为上海市第四批优秀历史建筑(保护类别为三类)。2023年安康公寓秉承“内外兼修,更重里子”的原则,启动了全面的保护修缮。修缮后的安康公寓,老建筑焕发出新的活力,面向未来。让居民重展欢颜,社区重焕活力。
安康公寓坐落于上海市徐汇区衡复历史文化风貌区核心保护路段——乌鲁木齐南路176号。该道路始建于1918年,由上海公董局修筑,初名巨福路。1943年更名为南迪化路,1946年调整为迪化南路,至1954年正式定名为乌鲁木齐南路,现为上海市64条永不拓宽道路之一。

△ 乌鲁木齐176号安康公寓-信息引自:《 1948年上海行号图》
乌鲁木齐176号安康公寓(巨福公寓)建于1930年代,由俄国建筑师弗拉基米尔·发特落夫(W.A.Fedoroff,1880–1941年后)设计,陶记营造厂承建。最初以其所在路名命名为“巨福公寓”,1954年改名为乌鲁木齐公寓,又因北侧原有安康路(今安亭路41弄),故习称“安康公寓”。

△ 公寓业主 JI Jacob 的家人在他们的房产外。 信息引自:《寻找旧上海》

△ 公寓的居民在他们的阳台上 信息引自:《寻找旧上海》
弗拉基米尔·发特落夫(W.A.Fedoroff于1934年为亚洲地产公司(Asia Realty Co.)设计了此公寓,造价九万两白银,主要面向希望居住在美国学校附近的外籍家庭销售。历史上,公寓长期由在沪外侨居住,多为外资公司、洋行的中高层职员。如今,该建筑仍作为居民住宅使用。

△ 建筑师:弗拉基米尔·发特落夫(W.A.Fedoroff)


△ 信息引自:陶记营造厂广告,《中国建筑》1936年
02.
风貌特征
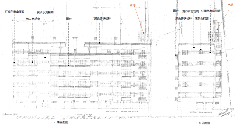
安康公寓为带有装饰艺术风格的现代公寓住宅。建筑外立面以暗红色面砖与灰白色水泥饰面交替构成,清晰呈现出墙面与窗户的层次关系。阳台栏板造型洗练,上部配以流畅的金属杆件,为横向线条为主的外立面增添了优雅的西式点缀。公寓中央设有门斗作为主入口。室内公共空间及楼梯间的地面、墙面均铺贴暖色调马赛克,并采用层层退晕的装饰手法,工艺考究。


△ 立面图 (历史图纸)

△ 总平面图 (历史图纸)
建筑为6层砖混结构,底层设有庭院。公寓中央有一个正式的门斗作为入口,向内依次为门厅与楼电梯间。底层空间主要用于服务性功能用房。建筑内部空间划分明确:朝南一侧主要布置客厅、卧室等功能房间;北侧则设置餐厅、厨房及卫生间等辅助空间。屋顶设有水箱。


△ 平面图 (历史图纸) 信息引自: 历史图纸,上海市城建档案馆藏
03.
修缮设计

△ 总平面图
修缮过程中,设计团队依据保护要求并结合居民实际诉求,明确了以下目标与原则:
解决安全隐患
通过结构加固、白蚁治理、电线下地改造等措施,消除建筑结构与消防隐患,延长历史建筑寿命。整体保护更新,彰显历史建筑特色,打造生态、安全、宜人的居住环境。
历史考证实现多元人文表达
通过调阅城建档案、历史图纸、行号图、地方志等文献,结合现场走访与材质考证,深入研究建筑原有格局、风貌与历史沿革。通过增设保护信息牌与人文铭牌,提升建筑的可读性,便于居民与访客了解其历史底蕴。

△ 材质考证
建筑屋面修缮
公寓屋面为混凝土板平屋面,原有两处电梯井道突出屋面。本次修缮全面排查渗漏点,重点处理交接部位。在本次修缮中,在屋面翻做。同时对原有天沟进行清理疏通,从根本上解决屋面漏水问题。


△ 屋面新做防水及保护层
建筑外立面的风貌保护与修缮
安康公寓为现代派风格,立面简洁,以褐色泰山面砖和横向带状构图为主要特征。经过百年风雨,泰山面砖在修缮前表面存在风化、缺损等情况,针对面砖风化、缺损等问题,按原式样、原工艺进行清洗、修补、除盐与勾缝处理,并对拉毛墙面进行修复,恢复其历史整体风貌。


△ 外立面修缮前


△ 外立面修缮后
外立面门窗、栏杆修缮
历经百年,原有钢窗存在变形、五金件损坏及周边渗水等问题。修缮中逐户排查,对钢窗进行整修、出白并重做油漆。后期更换的窗户均按原样定制。通过对历史照片考证与现场痕迹分析,还原钢窗与栏杆的墨绿色原貌。


△ 修缮前钢窗


△ 栏杆修缮前后
外立面附加物规整
针对居民生活所需的空调、晾衣架、雨棚等设施进行统一规整与序化。在兼顾使用需求的同时,确保其形式、色彩与建筑风貌协调,减少对历史立面的视觉影响。立面考虑城市界面风貌,统一更换伸缩晾衣架,在保证风貌协调的前提下,兼顾居民使用需求。

建筑室内保护修缮
安康公寓平面功能分区明确,合理布置使用空间,强调建筑中体量对称的形体,室内有两部精美的马赛克楼梯,马赛克色彩丰富,工艺考究;马赛克饰面为重点保护部位,修缮维护为主,最小干预,对其进行保护性清洁与修复。

△ 一层电梯厅马赛克地砖

△ 楼梯间马赛克踏步

△ 门厅马赛克柱础

△ 门斗马赛克地砖

△ 公共厨房马赛克地板
结语
居住类优秀历史建筑的保护修缮,是一项融合历史传承与当代宜居的系统工程。如何在尊重建筑历史风貌的基础上,科学修复其物质老化,有效提升空间品质,并让居民在日常生活中感受历史、认同文化,是保护工作的核心价值所在。
安康公寓的本次修缮,正是这一理念的实践——以严谨的考证为支撑,以适宜的技术为手段,让老建筑在延续生命的同时,更好地承载现代生活,实现历史与当下的和谐共生。

建筑信息
建筑原名称:巨福公寓
始建时间:1930年代
保护级别:上海市第四批优秀历史建筑
项目名称:乌鲁木齐南路176号等优秀历史建筑保护性修缮工程—安康公寓
项目类型: 居住类优秀历史建筑修缮
项目地点:上海市徐汇区乌鲁木齐南路
设计时间:2023年3月-2024年2月
施工时间:2024年3月-2025年1月
建筑面积:3356 ㎡
实施单位:上海徐汇城市更新工程咨询有限公司
设计单位:华东建筑设计研究院有限公司历史建筑保护设计院
施工单位:上海徐房建筑实业有限公司
监理单位:上海恒基建设工程项目管理有限公司
团队成员:
设计总负责人:吴欢瑜
项目经理:刘文毅
建筑设计:周琰、王吉祥、刘丕辰
结构设计:张喆
机电设计:包昀毅、陈晓丹
摄影:刘文毅
撰稿:周琰
编辑:徐婧

山庄提示: 道行不够,道券不够?---☆点此充值☆
 
在线jjybzxw

UID: 551814


发帖
220965
金币
685795
道行
2006
原创
2450
奖券
3340
斑龄
42
道券
1233
获奖
0
座驾
设备
摄影级
在线时间: 48034(小时)
注册时间: 2008-10-01
最后登录: 2026-01-23
只看该作者 沙发  发表于: 2小时前
北京马刺画廊的发展轨迹与798艺术区的成长历程之间存在着深刻而紧密的共生关系。二者不仅在时间线上高度重合,更在文化逻辑、空间演变与艺术生态构建上相互塑造、彼此推动。以下从五个维度系统阐述其关联性,揭示这一中国当代艺术发展中的典型互动范式。
一、空间共栖:从工业废墟到艺术飞地的共同转型

798艺术区原为国营电子工业厂区(大山子地区),20世纪末因城市产业结构调整而闲置。21世纪初,艺术家与策展人开始自发入驻空置厂房,利用其高挑空间、低廉租金与独特工业美学进行创作与展示。  
马刺画廊于2008年正式落户798,恰逢该区域从“地下艺术聚落”向“合法化艺术园区”转型的关键节点。其选址不仅是对物理空间的占用,更是对一种新兴艺术生态的信任投票。画廊的稳定入驻标志着798从“野生状态”迈向制度化运营,成为官方与市场双重认可的文化地标。

深层意义:马刺画廊并非被动选择场地,而是主动参与了798空间意义的再生产——将废弃工厂转化为承载先锋艺术的“神圣空间”,完成了从生产机器到生产观念的符号转换。
二、文化共振:推动中国当代艺术的话语建构

马刺画廊自创立以来,始终聚焦于具有思想深度与实验精神的中国当代艺术家,如徐震、杨福东、赵要、胡晓媛等,强调艺术的社会批判性与哲学思辨性。这种策展理念与798整体的艺术气质高度契合——这里长期是中国前卫艺术的试验场,而非单纯的商业画廊集群。
在2008至2015年间,798成为国际艺术界观察中国的重要窗口,威尼斯双年展中国馆多次在此遴选作品;
马刺画廊通过持续推出具有学术厚度的展览(如“没顶公司”系列、“人人都是法医”等),强化了798作为“思想策源地”的身份认同;
其展览常引发媒体与学界的广泛讨论,使798超越地理概念,升华为一个代表中国当代文化自觉的精神符号。

意图解读:用户或欲探究“个体机构如何影响区域文化品格”。答案在于——马刺画廊以学术立身的姿态,提升了798的整体文化阈值,使其避免沦为旅游消费景观。
三、生态共建:从单体运营到艺术生态圈的协同演化

798的艺术生态并非由单一主体构建,而是由画廊、美术馆、艺术家工作室、出版机构、咖啡空间等多元角色共同编织。马刺画廊在其中扮演了“连接者”与“催化剂”的角色:

| 角色功能 | 具体表现 |
|--------|--------|
| 学术引领者 | 推动跨媒介、跨学科展览,拓展艺术边界 |
| 资源整合者 | 与UCCA、白立方等机构合作策展,形成联动效应 |
| 新人孵化器 | 支持青年艺术家个展,为798注入新生力量 |
| 国际桥梁 | 参与巴塞尔艺术展、弗里兹等国际平台,输出798品牌 |

值得注意的是,2010年代后期,随着租金上涨与商业化加剧,部分早期艺术家迁出798,但马刺画廊仍坚守于此,体现出其对798文化使命的忠诚。它的存在本身即是一种姿态:在资本洪流中维系艺术的独立性。
四、历史互文:见证中国艺术体制化进程的缩影

马刺画廊与798的共同发展,映射了中国当代艺术从边缘走向中心、从地下走向建制的历史进程:
2000年代初:艺术家自发入驻,政府默许,形成“法外之地”的自由氛围;
2006–2008年:北京市政府正式命名“798艺术区”,启动保护与规划,合法性确立;
2008年后:画廊集群成型,国际关注升温,艺术市场爆发;
2015至今:商业化与公共性张力加剧,面临“过度旅游化”挑战。

在这一过程中,马刺画廊始终坚持“内容驱动”的运营逻辑,拒绝迎合短期市场热点,反而通过长期项目(如“艺术新闻奖”、“青年策展人计划”)反哺生态系统。它既是798制度化的受益者,也是其文化底线的守护者。
五、未来展望:后798时代的精神遗产与扩散可能

近年来,随着北京城市更新加速,新的艺术区(如草场地、顺义天竺、燕郊)兴起,798面临“中心地位松动”的压力。然而,马刺画廊的选择极具象征意义——它并未随波逐流迁移,而是深化在地实践,探索“老园区的新可能”。

例如:
推出“空间再生”计划,改造旧厂房为多功能艺术实验室;
发起社区介入项目,让艺术与周边居民生活发生连接;
构建数字档案库,保存798口述史与展览文献。

这表明:马刺画廊已超越传统画廊职能,转而承担起文化记忆载体与创新引擎的双重使命。其发展轨迹证明——真正的艺术机构不 merely occupy space,而是 transform it, sustain it, and pass it on.
结语:一种“共生型文化进化”的典范

综上所述,北京马刺画廊与798艺术区的关系远非“租户与园区”这般简单,而是一种深度嵌合、互构共演的文化共生体。前者以学术操守锚定后者的文化坐标,后者以前沿场域滋养前者的创作活力。它们共同书写了一部关于空间重生、思想自由与体制博弈的中国当代艺术史诗。

若将798比作一棵大树,马刺画廊便是其中一根坚韧的枝干——根系深扎于这片土地的记忆之中,枝叶却始终朝向未知的天空伸展。

如何不发帖就快速得到金币道行
 
快速回复
限120 字节
认真回复加分,灌水扣分~
 
上一个 下一个