切换到宽版
  • 441阅读
  • 1回复

[奇观]北京青核INNNG国际人才社区 / 朱小地工作室[39P] [复制链接]

上一主题 下一主题
在线jjybzxw

UID: 551814

 

发帖
223764
金币
709067
道行
2006
原创
2450
奖券
3340
斑龄
42
道券
1233
获奖
0
座驾
设备
摄影级
在线时间: 48299(小时)
注册时间: 2008-10-01
最后登录: 2026-02-02
只看楼主 倒序阅读 使用道具 楼主  发表于: 2025-12-11
— 本帖被 huozm32831 执行加亮操作(2025-12-12) —


△ 项目鸟瞰 ©张哲鹏、徐晓通
在城市的版图上,建筑从来不是孤立的存在,而是与场地、人群、城市精神深度对话的空间载体,建筑早已超越其物理功能,成为承载城市精神的容器。
△ 项目视频 ©DONG建筑影像
位于北京海淀区清河镇的青核INNNG国际人才社区,便是这一理念的生动体现。其建筑生成的背景,正是北京海淀青核INNNG项目所在地的特殊性,这特殊性源于对多种边界因素的应对策略进行综合考量的结果。这一复合型青年居住项目不仅直面特殊地形与复杂城市环境带来的挑战,更以“环抱共生”的建筑形态,构建出一处激发创新、促进交流、融入城市的活力地标。
场地应答:城市节点的青年聚落
项目东临京藏高速,北接小营西路,是城市空间的重要节点。被城市道路与绿地挤压而成三角形用地,空间非常局促,不适合常规的规划布局;紧邻的高架京藏高速对场地产生空间压迫和噪音干扰;场地的南侧和北侧,地铁19号线与昌平线南延线的站点之间,存在着大量的地面换乘人流,对公寓的长租人群可能形成干扰。

△ 总平面图
方案将上述制约因素转化为独特的规划策略。对于东北侧的城市绿地,设计成逐渐升高的斜坡景观,既面向城市道路形成立体展示的界面,同时最终形成的6米高差也为公寓提供了主要的入口平台。而地铁换乘的人流可以在地面自由通行,互不干扰。地面与高速公路的高架桥之间的尴尬被巧妙化解,形成错落有致的台地式布局。在建筑首层可以布置商业配套,既服务住户日常需要,也激活场地商业价值。

△ 东北立面 ©张哲鹏、徐晓通

△ 东北入口 ©DONG建筑影像

△ 南侧幼儿园 ©张哲鹏、徐晓通

△ 南立面 ©张哲鹏、徐晓通
形态生成:科技基因的空间表达
项目摒弃传统密集塔楼公寓的呆板布局,连续“反N”的建筑造型,如同激情跳跃的轨迹一般,塑造崭新的建筑形象和城市轮廓。三座塔楼斜向延伸、彼此衔接,形成三个巨大的三角形开口,既打破高层公寓的单调感,也构建出通透的立体庭院。几何形态的力量感,以明确且富于动感的形象面向城市,既呼应中关科技企业的现代气质,也隐喻着科技人群敢于创新的精神内核。

△ 方案生成

△ 二层室外 ©张哲鹏、徐晓通

△ 建筑“环抱共生” ©张哲鹏、徐晓通

△一层与二层扶梯 ©张哲鹏、徐晓通

△地下一层下沉广场 ©DONG建筑影像

△一层室外 ©张哲鹏、徐晓通
建筑内部通过清晰的功能分区构建起空间秩序。为满足消防规范,将连续的建筑体量划分为三个部分,分别成为一个独立的消防分区。从门厅到电梯厅,从走廊进入公寓,形成从公共到私密的递进的关系。

△ 内部空间组织

△ 门厅入口 A ©北京建院装饰

△ 门厅入口 C ©北京建院装饰

△ 电梯门厅 ©北京建院装饰

△ 公寓走廊 ©北京建院装饰
10层以上退台提供观景露台,西山与城市景观一览无余。户型从单身公寓至复式套房,均采用可拆卸隔断与模块化家具系统,支持居住与办公的自由切换,适配科技创业者的多元需求。

△ 公寓室内 ©北京建院装饰

△ 公寓室内 ©北京建院装饰

△ 公寓室内 ©北京建院装饰

△ 屋顶露台 ©张哲鹏、徐晓通

△ 城市线 ©张哲鹏、徐晓通
空间对话:连接人与故事的容器
三个方向的三角形开口被塑造为不同主题的活动场所,让建筑成为青年文化与城市生活的“缝合剂”。空间在这里呈现出更多维度,建筑三角形的内庭面向天空,形成起伏的轮廓,在二层、首层和地下一层又演变为相互连接的空间网络。建筑立面中三个方向三个巨大的、三角形开洞伴随着光影将城市景观引入其中。

△ 三角空间立面 ©张哲鹏、徐晓通

△ 活动大堂入口 ©张哲鹏、徐晓通
东北侧“城市画廊”,应对京藏高速,成为一个向城市展示的窗口,未来这里艺术装置和灯光投影将成为不断演绎的青年文化剧场。

△ 光影 ©DONG建筑影像
西侧“共享台阶”,连接二层平台的大台阶,自然形成户外沙龙区,适合即兴讨论、午后阅读或小型音乐会。

△ 西侧“共享台阶” ©DONG建筑影像
南侧“创新大堂”,悬索玻璃幕墙围合的室内空间,打破内外界限。这里不仅是归家的第一站,更是社区客厅,承载创意市集、项目路演与社群活动。

△ 活动公共空间 ©张哲鹏、徐晓通
精神赋能:一种可生长的创业文化
对居住于此的科技人群而言,青核INNNG不仅是居所,更是创新的“孵化器”。开放的公共空间鼓励跨领域交流,庭院、步道、大堂中,随时可能碰撞出思想火花;理性严谨的建筑形态与灵活多元的空间设计,共同传递着突破常规、持续探索的创新精神。

△ 室内外关系 ©张哲鹏、徐晓通
贯穿社区的休闲步道,将东北侧绿地、内部庭院与西南方向的体育公园串联为一条完整的“活力轴”,鼓励人们运动、散步与不期而遇的交流。“破土新生”的景观理念,为城市植入一片生态绿洲,让建筑真正融入公共生活。

△ 东北入口 ©DONG建筑影像

△ 步道景观 ©DONG建筑影像
在这里,居住、工作、社交与休闲的界限被柔化,建筑以包容的姿态,承载年轻人对创新生活的全部想象。它既是面向城市的形象节点,也是扎根日常的生活港湾。设计重新定义集体租赁住房的价值,为新时代城市建筑如何兼具辨识度、社区感与人本关怀,提供了生动的诠释。

△ 地下1层平面图

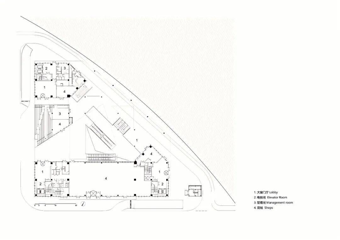
△ 首层平面图

△ 2层平面图

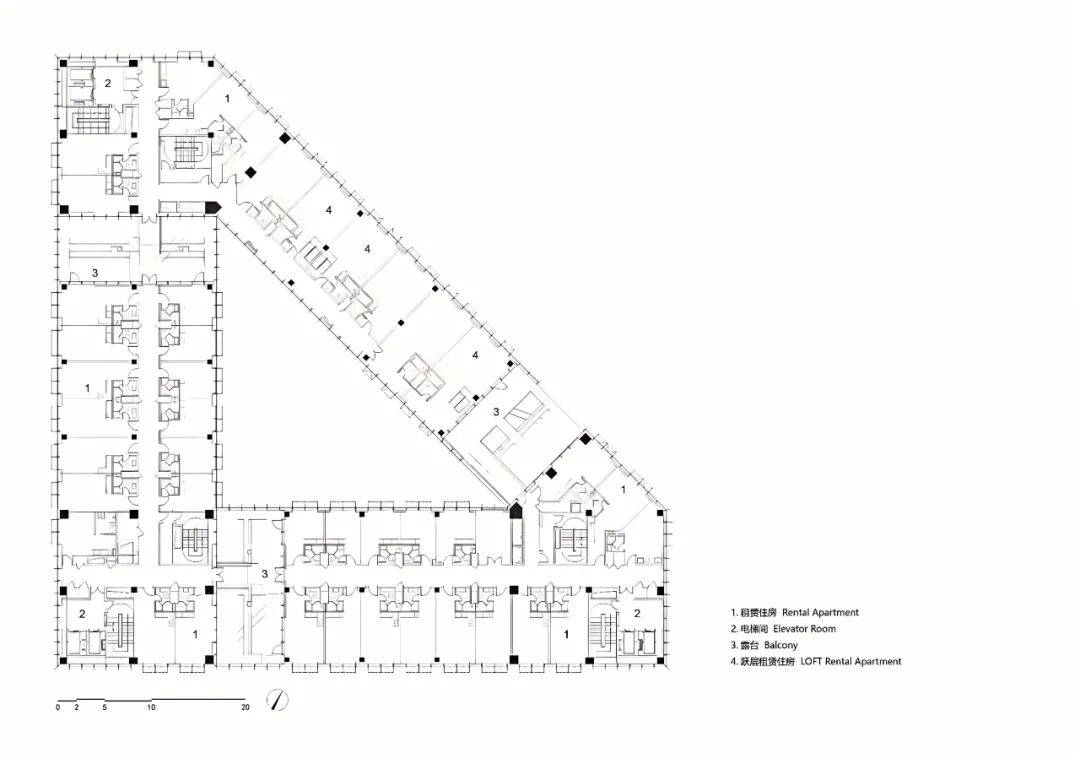
△ 10层平面图

△ 东北立面图

△ 南立面图

△ 西立面图

△ 东北剖面图

△ 南剖面图
项目名称| 青核INNNG国际人才社区
项目地点| 北京市,海淀区
建筑面积| 48156平方米
建成时间| 2024年11月
建设单位| 北京市海淀区清河农工商公司
设计单位| 朱小地工作室、北京市建筑设计研究院股份有限公司
主持建筑师| 朱小地
建筑方案、景观设计| 朱小地工作室、北京市建筑设计研究院股份有限公司
施工图设计| 北京市建筑设计研究院 第七建筑建筑设计院
精装设计| 北京建院装饰工程设计有限公司 设计八所
泛光照明顾问| 北京光湖普瑞照明设计有限公司
幕墙顾问| 中国建筑设计研究院有限公司帷幕中心
摄影| 张哲鹏、徐晓通、DONG建筑影像、北京建院装饰
文案| 朱小地、周怡汝
1条评分金币+20
huozm32831 金币 +20 - 2025-12-12
山庄提示: 道行不够,道券不够?---☆点此充值☆
 
在线jjybzxw

UID: 551814


发帖
223764
金币
709067
道行
2006
原创
2450
奖券
3340
斑龄
42
道券
1233
获奖
0
座驾
设备
摄影级
在线时间: 48299(小时)
注册时间: 2008-10-01
最后登录: 2026-02-02
只看该作者 沙发  发表于: 2025-12-11
建筑不仅是遮风避雨的物理空间,更是城市精神的具象化表达。它以凝固的语言诉说历史、回应文化、参与社会,并在时间的沉淀中成为城市灵魂的容器。当建筑与城市精神实现深度对话,它便超越了功能性的存在,升华为一种集体记忆的载体、身份认同的锚点和未来愿景的象征。以下从五个维度深入探讨这一命题:

---

一、根植地域文脉:建筑作为文化的转译者

城市精神源于其独特的历史积淀、地理环境与人文传统。真正有生命力的建筑,不是对风格的简单复制,而是对地域文脉的深刻理解与创造性转化。

- 材料与工艺的在地性:使用本地石材、木材或砖瓦,不仅降低生态成本,更延续了地方建造智慧。如福建土楼以夯土筑墙,既适应湿热气候,又体现宗族聚居的社会结构。
- 空间形态的文化隐喻:北京四合院的围合布局映射儒家礼制秩序;江南园林的“借景”手法则体现天人合一的哲学观。现代建筑可通过抽象提炼这些空间原型,实现传统的当代表达。
- 避免符号化挪用:警惕将文化元素简化为装饰图腾(如强行加飞檐翘角),而应追求精神内核的共鸣——即“形可变,神不散”。

---

二、回应公共生活:建筑作为社会关系的催化剂

城市精神的本质是人的集合意志与共同情感。建筑若要承载这种精神,必须主动介入公共生活,激发市民参与与归属感。

- 创造“第三空间”:介于家庭与工作场所之间的开放空间(如广场、街角公园、社区中心)是城市精神孕育的温床。如巴塞罗那的“超级街区”(Superblocks)通过限制车流,释放街道供居民交往,重塑邻里关系。
- 包容多元使用者:真正的公共性体现在对不同年龄、阶层、能力人群的接纳。丹麦“8 House”住宅综合体将步行道、自行车环线与居住单元融合,让日常通勤成为社交契机。
- 留白与可塑性:预留未定义空间供市民自发使用(如柏林Tempelhofer Feld机场改建为市民公园),体现对城市未来可能性的尊重。

---

三、书写时间叙事:建筑作为记忆的层积体

城市精神在时间中生长,建筑应具备讲述过去、见证当下、启示未来的叙事能力。

- 保护与更新的辩证:历史建筑不应被博物馆化封存,也不应被彻底推倒重来。伦敦泰特现代美术馆由发电厂改造而成,保留工业骨架的同时注入艺术灵魂,形成新旧对话的时空张力。
- 显性记忆 vs 隐性记忆:除纪念碑式地标外,更需关注日常生活中的“微记忆”——老店铺招牌、街巷肌理、树影斑驳的骑楼。这些建筑细节构成城市的“气味地图”,唤起深层情感共鸣。
- 允许痕迹留存:日本建筑师隈研吾提倡“负建筑”,主张让材料随时间风化,使建筑自身成为一部可见的时间日记。

---

四、塑造空间正义:建筑作为公平价值的践行者

一座城市的精神性,最终体现为其对弱势群体的关怀程度。建筑在此承担伦理责任,成为社会公平的空间兑现。

- 基础设施即尊严:优质的公共交通站、公租房、公共厕所等“平凡建筑”,往往比地标更能反映城市温度。新加坡组屋政策通过高密度高品质住宅建设,实现种族融合与社会稳定。
- 可达性设计:无障碍通道不仅是规范要求,更是对差异生命的尊重。芬兰赫尔辛基中央图书馆Oodi向所有人免费开放,无论是否借书,皆可在此阅读、聚会、甚至使用3D打印机,体现知识民主化理念。
- 抵抗资本异化:在全球化浪潮下,防止建筑沦为地产投机工具。拒绝“玻璃盒子”式的国际风格泛滥,抵制以牺牲公共利益为代价的超高层竞赛。

---

五、引领生态意识:建筑作为自然契约的守护者

当代城市精神日益包含可持续发展的伦理自觉。建筑作为资源消耗大户,必须重新定义人与自然的关系。

- 被动式设计优先:利用自然通风、采光、遮阳等策略减少能耗,如马来西亚槟城的“热带现代主义”建筑群,深挑檐与中庭有效应对高温高湿。
- 垂直生态系统的构建:米兰“垂直森林”公寓外墙种植近千棵树木,不仅改善微气候,更将生物多样性引入城市核心。
- 循环思维贯穿全周期:从建材选择(再生材料)、施工方式(模块化预制)到拆除回收(设计可拆解结构),建筑应成为循环经济的示范单元。

---

结语:建筑即精神,空间即语言

建筑与城市精神的对话,是一场持续不断的双向建构。一方面,建筑从城市的文化基因中汲取养分;另一方面,杰出的建筑又能反哺城市,重塑其精神高度。在这个意义上,建筑师不仅是空间的塑造者,更是城市灵魂的翻译官与共谋者。

未来的理想城市,不应只见炫目的“标志性建筑”,而应遍布那些谦逊却深情的空间——它们记录欢笑与泪水,容纳差异与共识,在日复一日的使用中,悄然凝聚成一座城不可替代的精神气质。

> 正如挪威建筑师斯维勒·费恩所言:“建筑的意义不在其形式本身,而在它如何被生活填满。”唯有当建筑真正融入市民的生命经验,它才能成为城市精神永恒的容器。
1条评分金币+6
huozm32831 金币 +6 - 2025-12-12
如何不发帖就快速得到金币道行
 
快速回复
限120 字节
认真回复加分,灌水扣分~
 
上一个 下一个