切换到宽版
  • 425阅读
  • 1回复

[奇观]惠州“学背之家”城中村的故土原乡 / 仓北文旅·共和营造建筑工作室[55P] [复制链接]

上一主题 下一主题
在线jjybzxw

UID: 551814

 

发帖
223764
金币
709067
道行
2006
原创
2450
奖券
3340
斑龄
42
道券
1233
获奖
0
座驾
设备
摄影级
在线时间: 48299(小时)
注册时间: 2008-10-01
最后登录: 2026-02-02
只看楼主 倒序阅读 使用道具 楼主  发表于: 2025-12-11
— 本帖被 huozm32831 执行加亮操作(2025-12-12) —


▲鸟瞰建成后“学背之家” 摄影:王策

▲建成后俯瞰街巷与建筑 摄影:王策

▲建成后北面鸟瞰建筑 摄影:王策

▲鸟瞰城市清晨时“学背之家” 摄影:王策

▲建成后南面庭院入口 摄影:王策

▲建成后东面夹缝中窥看一层后院门口 摄影:王策
“我们的居住因为住房短缺而受到折磨。甚至并非如此,我们现在的居住也因为劳作受到折磨,因为追求利益和成功而毫无保障,因为娱乐和消遣而心醉神迷。但是今天的居住之中,哪里还有为诗意留下空间和积攒的时间?”
海德格尔《诗·语言·思》
前言
2020年初夏,共和营造建筑工作室刚成立不久,业主黎家兄妹通过朋友找到我们,委托重建继承下来的一处祖屋,祖屋距离工作室不远,中间隔着一座历史教堂。
黎家大哥第一次来事务所委托洽谈时,注意到共和营造建筑工作室通向天台的木楼梯正对着老教堂,不禁感慨:“若是站在这楼梯上拉段小提琴,该是多美妙的时光。”后来兄妹提交的设计任务书时只提了一个要求“要有坡屋顶,站在露台对着青瓦白墙的房子拉提琴”。
△项目视频 @王策  

▲北面邻居院内看向建筑 摄影:王策

▲南面鸟瞰建筑入口 摄影:王策

▲东面侧瞰建筑 摄影:王策
01.
老城里坍塌的祖宅
在城市化进程中,“城中村”是一种独特的空间形态与社会单元,始终处于争议的焦点。它既是低成本生活的容器、移民的落脚点,也常被视为“脏乱差”的代名词,是城市现代化进程中被改造和抹去的对象。然而,这些看似杂乱无章的肌理深处,蕴藏着城市最为真实的记忆密码和鲜活的生命力。近年来,伴随“文化自信”与“乡愁”意识的觉醒,一种源自民间的、小规模的、自下而上的微更新实践逐渐浮现。它们不再追求焕然一新的表象,而是试图在既有脉络中,重新找寻一种能够安顿身心、连接过去的“场所感”(Sense of Place)。这种追寻,本质上是于喧嚣都市中重构“原乡”的期望。

▲祖宅坍塌原貌 @共和营造
宅地位于不同年代建筑围合的街巷之中,是父辈兄弟分家析产残留的地块,地块呈不规则的P字形,经测算,剔除老墙基后,净面积仅44平方米。东、南两侧与邻宅共用山墙,西面仅40CM墙距的巷隙两端被砖墙封死,形成一个近乎密闭的“缝隙空间”。南北方向虽略有开口,但南侧巷路狭窄和婶婶家凸出一块房角,把唯一出入口挤成1.9 x4.7 米与 5 x7 米的“P”字形地块,北侧85CM间距被低矮铁皮房半遮挡。这种四面围合的“P”式格局,给采光、通风、视野和施工带来了极大的挑战。

▲祖宅场地南面原貌 @共和营造
02.
困境中的潜力
尽管物质条件严峻,但场地本身蕴含巨大的情感价值。它是黎氏家族记忆的地理原点,也是兄妹家族清明祭祖回到惠州的精神归宿。场地上残留的40厘米厚夯土老墙,虽已残破,却是时间与历史的直接物证。它不仅是物理的边界,更是情感的载体。识别并转化这些限制中的潜力,是设计的起点。

▲祖宅场地北面原貌 @共和营造
作为黎家兄妹第二居所的继承祖屋,这类继承性祖宅有别于宗祠家庙等祭祀性场所,精神性和日常生活是并置的,它指向家庙而在此生活;宗祠为族人在此祭奠的场所,它又提示族人指向生活。祖宅有别于商品住宅仅满足居住功能,是日常栖居的意义场所,也是家族情感的地理原点和文化原乡。

▲区块卫星瞰图 @共和营造

▲坍塌祖宅原貌分析 @共和营造
03.
策略
暗巧这次机缘,以惠州桥东老城这处44平方米坍塌祖宅重建项目,作为实践对象,在高密度城中村语境下,如何用建筑回应家族记忆、地域气候与复杂的邻里关系。项目面对极限的空间条件,用“时间剖碎”、“微景框借”、“呼吸建构”与“材料诚实性”的方法,对抗常规的封闭速成模式,将建筑锚固于场地历史纹理之中,并将 “爬梯”、“中心柱”、“谷仓”“园池” 等空间原型进行当代转译,设计保留并重构老墙、用弧形屋顶消解压迫感,以及建构微缩园池等方式,在方寸之地筑建一个连接过去与现在,兼具日常性与精神性的“文化原乡”。实践当下城市的微更新与社区提供一种基于人文出发与精细设计的新尝试。

▲学背之家重建策略 @共和营造
虽然过往熟踏这片街巷,场地踏勘后还是有种未知的陌生感。地块所处的“学背街”路名是因桥东老城中惠阳高级中学校史渊源(元泰定元年,1324年)归善学宫百年名校而来,姑且就叫它“学背之家”也有场所的含义。
不完全拆除老墙,而是将其作为场地的“基座”或最重要的“遗存”予以保留。新建的清水混凝土结构并非与老墙并置,而是小心翼翼地嵌入其中,与之形成一种共时性的缠绕关系 。

▲原旧夯土墙垣穿延新筑墙体 摄影:王策

▲建成后剖碎与连续的山墙 摄影:王策
在保留的老墙垣上进行谨慎的剖断与新筑的“掏洞”操作。这些洞口大小、形状、高低各异,其功能多元:一是引入光线,使自然光成为刻画时间的画笔,在室内投下流动的光影;二是引导视线,形成一系列精心框取的景致,将外部的绿意、天空乃至墙隙造影引入室内视野;三是促进通风,与后续的通风系统结合。老墙由此从一个封闭的边界,转变为一个具有渗透性的、连接内外与古今的媒介。

▲南厢房高、低洞口与夹缝里的微光 摄影:王策

▲三层棚顶照进来的光 摄影:王策

▲一层餐茶空间看向西面新、老墙窗口剪影 摄影:王策

▲一层厨卫空间看向东面斜缝山墙 摄影:王策
岭南地区气候闷热潮湿,良好的通风是舒适居住的前提。 我们设计了一套精细的被动式通风策略。首先,利用南北向的开口组织穿堂风。其次,在一楼地脚设置隐蔽的进气格栅,在三楼屋顶预留排气风口,利用热空气上升的“烟囱效应”,即使在无风或门窗关闭时,也能形成持续的气流,将室内浊热空气抽出,引入底部凉爽空气。这套系统确保了建筑能够“自主呼吸”。

▲气候条件应对 @共和营造
选择门窗系统时,刻意避用了气密性极高的现代铝合金窗,转而使用传统榫卯工艺的柚木门窗。因其微弱的缝隙恰好允许一丝微风渗透,避免了小空间完全密闭后的闷塞感,同时也带来了更柔和的触觉体验。

▲建成后北面航拍建筑木作窗口 摄影:王策

▲一层堂间与后院木作窗门口 摄影:王策

▲二层栖居室北面木作窗口 摄影:王策

▲二层上下梯口与南面窗门口 摄影:王策

▲三层东南角天台出入口 摄影:王策
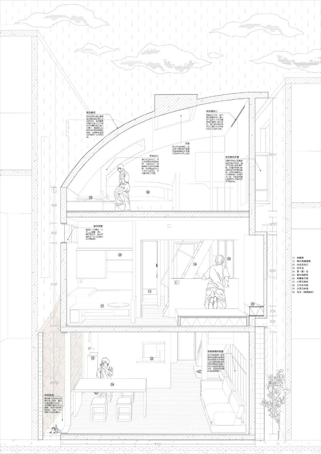
为化解东西高墙的压迫,屋顶被设计成一道舒缓的弧形。这道弧线不仅从视觉上消解四方盒子的僵直感,赋予混凝土屋顶以轻盈的意向,更是引导视线与空间体验。大上扬,所见的天弧顶向外张弓,消解内部压迫感;人置身于三层弧顶之下,坐卧在特意设置的罗汉床榻上,视线随弧面自然空片段因而显得更为深远,立足外部阳台又实现了“棚下看雨”的诗意。

▲透剖图 @共和营造

▲建成后北面侧看邻里与建筑 摄影:王策

▲建成后三层弧形棚下看向外面 摄影:王策
所有空间的开口与家具的布置,均依据人体的尺度与行为模式(坐、卧、仰、望、眺、倚、探)进行锚定。通往顶层露台的过程被设计为一种仪式性的体验:穹顶开口压低,人需躬身而过,此动作为强化空间的转换,从日常的居室过渡到可与天空、教堂对话的精神性场所。

▲北立剖图 @共和营造

▲楼层动线图 @共和营造
04.
转译
我们设计了通往三层耕读空间的楼梯,其坡度与宽度65厘米刻意回归了老城窄梯的尺度,需“手抓护栏,一人上下”。这种受限的、具有明确身体性的攀爬过程,与商品住宅中宽大、流畅、高效流通的楼梯形成了鲜明对比。

▲二层起居空间看向爬梯 摄影:王策
在空间意念上,从一层至下而上连续转换的柱子,到三层的罗汉床榻,以其强烈的包裹性和朝向天空、教堂的视野,成为了一个精神性的“中心”。它如同一个锚点,将家族的聚集、冥思、眺望等活动固定下来,与商品住宅中均质、无中心的“客厅”形成了本质区别。

▲室内三层耕读空间与罗汉床榻 摄影:王策

▲三层爬梯口抓手钢柱 摄影:王策

▲二层连通谷仓(新)松木圆柱 摄影:王策

▲一层堂间(老)松木方柱 摄影:王策
传统民居中的阁楼或谷仓,是“积攒”与“传承”的象征。“学背之家”的夹层,意义在于保留“储存”这一家居核心功能的空间属性。也暗示这个“家”具有积累的能力,是能容纳时间与记忆的容器。

▲建成后从谷仓内看向爬梯 摄影:王策
我们塑造了一个具有“前庭后院”感的微缩园池。在这里并未试图填满它,而是“留白”,让光、风、雨水和绿植在此自然生长。

▲一层前庭天井与园池 摄影:王策

▲一层堂间西北角后院穿插的山墙 摄影:王策

▲南面庭院入口穿望后院 摄影:王策
05.
材料与建造
基于反装饰主义的原则和对岭南潮湿环境的回应,建筑全部使用了清水混凝土。结构体一次浇筑完成,模板上覆以回收老木板,将温暖的木纹转印于混凝土表面。

▲结构分解示图 @共和营造
小规模、高定制化的项目在当下追求效率的工业化建造体系中举步维艰。从地基遇到橡胶泥层的技术挑战,到雨季延误、工人更替,整个建造过程(2021-2024)充满了意外。作为建筑师不得不超越传统角色,成为施工管理者、邻里协调员甚至工艺指导者。因极少工人愿意触碰这样又小又复杂的活,全靠江湖道义和人情关怀拉拢。也时有不凑效,班组领头一直不断更替工人。

▲现场协助工人纠错反复核对图纸 @共和营造

▲大弧顶拆模(左)与补救施工(右) @共和营造

▲工人在三层水磨地面(左) ▲工人打磨修复墙面(右) @共和营造
06.
居住者与访客
2025年元旦后,学背之家跨越五年的间隔施造终于落成。入伙前黎姐带92岁高龄,且有阿尔茨海默症的妈妈,回来看刚落成的房子。
坐在堂间沙发上的妈妈看著那片山墙反复问是在哪里?
第二次宅子入灶火时,在沙发上休息的妈妈还是看到那片山墙,无意间吩咐正做饭的黎姐,去宅子门前为祖先敬柱香。黎家妈妈的反应如是对空间感知的某种熟悉回响,是多么令人震惊的惊喜。

▲祖宅一层内部空间 摄影:王策
4月中旬王策从昆明飞过来拍摄学背之家,正午等王策吃午饭的时候上到二楼,恰好一道光从三楼南墙窗口照下来,光影剖断西墙楼梯窗口,射向一楼。巧见这道意外获喜的光,把老墙、新筑、妈妈的反应串联起来,使我瞬间觉然到时间的折叠。

▲正午顶层窗口照进楼梯的一道光 摄影:王策
后语
“学背之家”历时近五年的营造,是一次从物质性的“故土”迈向精神性“原乡”的漫长旅程。使用“时间剖碎”与 “现象的透明性” 策略,在垂直维度上重构了空间的深度与层次,将物理的“微缩”转化为感知的“旷奥”;通过“呼吸建构”与自然交融;更通过对“爬梯”、“中心柱”、“谷仓”“园池”等空间原型的当代转译,直指家的精神内核,对商品住宅所导致的家族观念与居住意义的扁平化进行了深度的空间反思。

▲室内一层伙房厨卫空间 摄影:王策

▲室内二层南厢房回望北厢房 摄影:王策

▲室内二层北厢房看向南厢房 摄影:王策

▲室内三层耕读空间看向谷仓 摄影:王策

▲建成后建筑外观 摄影:王策
在南方的城市中,榕树的种子大抵是从墙垣的砖石缝中,微微萌芽的两片叶子成为大树,“学背之家”应有这种生命力,后来这两片叶子就成了我们的屋顶。
“学背之家”的实验再次启示我,城市的真正活力与魅力,存在于那些被精心维系的“附近”之中。这或许正是建筑学在当代最为珍贵的价值所在:于喧嚣同质化的世界中,为我们寻回那份内心的安定、记忆的延续与诗意的栖居。
设计图纸:

▲区位示图 @共和营造

▲总平面图 @共和营造

▲(1-3层)平面图 @共和营造
项目名称:“学背之家”,城中村的故土原乡
项目类型:城市住宅更新
项目地点:广东惠州.桥东老城区学背街
设计时间:2020.7-2020.12
建造时间:2021.6-2025.1
地块面积:44㎡
建筑面积:116㎡
结构体系:清水混泥土
设计单位:仓北文旅·共和营造建筑工作室
主创建筑师:黄贻民
设计团队:黄贻民 王悦 杨耀州
施工驻场:谢国斌(兼职)
撰文:黄贻民
其它参与单位:
结构:黎工
制图:覃容
灯光顾问:谢祖成
施工:仓北文旅·共和营造建筑工作室
业主:黎氏兄妹
摄影:王策
视频:王策
本帖提到的人: @王策
1条评分金币+22
huozm32831 金币 +22 - 2025-12-12
山庄提示: 道行不够,道券不够?---☆点此充值☆
 
在线jjybzxw

UID: 551814


发帖
223764
金币
709067
道行
2006
原创
2450
奖券
3340
斑龄
42
道券
1233
获奖
0
座驾
设备
摄影级
在线时间: 48299(小时)
注册时间: 2008-10-01
最后登录: 2026-02-02
只看该作者 沙发  发表于: 2025-12-11
这些建筑的俯瞰图与鸟瞰图不仅呈现了空间的几何秩序与视觉美感,更深刻揭示了其背后的设计理念、文化语境与功能逻辑。从高空视角观察,建筑群的整体布局、轴线关系、形态构成以及与自然环境的互动方式得以全面展现。以下从五个核心维度系统解析其设计风格与布局特点:

---

一、轴线对称与秩序感:体现理性主义与象征性权力结构  
多数传统宫殿、宗教建筑或政府机构在俯瞰图中呈现出强烈的轴线对称布局,如北京故宫、凡尔赛宫等。这种中轴线主导的空间组织方式,体现了儒家礼制、皇权至上或宗教神圣性的思想内核。建筑沿主轴层层递进,形成“前朝后寝”“左祖右社”的等级序列,强化了空间的仪式感与控制力。鸟瞰视角下,这种几何秩序尤为清晰——道路、庭院、殿宇严格对位,展现出一种近乎数学般的精确美。

此外,现代纪念性建筑(如林肯纪念堂)亦延续此传统,通过视觉引导与视线控制,在城市尺度上传递庄重与永恒感。

---

二、有机生长与聚落形态:反映地域适应性与人文肌理  
相较于规整的对称布局,江南水乡民居、地中海小镇或非洲部落聚落则在鸟瞰图中展现出“非几何化”的有机形态。建筑依地形、水系、风向自然延展,形成错落有致、边界模糊的集群结构。例如徽州古村落常以祠堂为中心,巷道如血脉般向外辐射,宅院围绕水口布局,既符合风水理念,又实现排水通风的功能需求。

这类布局强调人与自然的共生关系,体现出低干预、可持续的空间智慧。其设计风格偏向“自下而上”的演化逻辑,而非“自上而下”的规划控制,展现出浓厚的地方性特征与生活气息。

---

三、几何抽象与现代主义表达:形式追随功能的空中演绎  
20世纪以来的现代建筑在俯瞰图中常表现出简洁的几何语言——矩形体块、圆形庭院、弧形流线等被大胆运用。勒·柯布西耶的昌迪加尔城市规划即为典范:政府区采用网格+放射路网,议会大厦以巨型混凝土曲面构成视觉焦点,整体宛如一幅抽象绘画。

此类设计强调功能分区明确、交通流线高效,常通过精彩开放空间(如广场、绿地)划分不同用途区域。鸟瞰图中可见办公楼、住宅、公共设施各居其位,形成“功能主义”的空间拼贴。同时,许多当代建筑借助参数化设计,生成流体般连续的屋顶轮廓或螺旋式平面,如扎哈·哈迪德的作品,在空中展现出动态张力与未来感。

---

四、生态整合与景观融合:建筑作为地景的一部分  
越来越多的建筑设计在俯瞰图中模糊了建筑与自然的界限。例如安藤忠雄的“教堂三部曲”虽形式极简,但在航拍视角下,清水混凝土结构与海、山、光形成静谧对话;而中国的杭州国家版本馆则采用“宋韵园林”意象,屋顶隐于山林之间,步道蜿蜒如溪流,整体仿佛从大地中生长而出。

这类布局注重借景、引景、藏景,利用高差、植被、水体调节微气候,并通过低密度开发保留生态廊道。其设计风格追求“隐形建筑”或“负建筑”理念,反对突兀介入,强调谦逊与回应环境的能力。

---

五、混合模式与多中心结构:应对复杂城市的新型范式  
在全球化与高密度城市背景下,大型综合体(如机场、大学城、科技园区)往往在鸟瞰图中呈现“多核网络化”布局。例如新加坡樟宜机场以星耀樟宜为核心,航站楼呈放射状连接,绿植覆盖屋顶,形成功能与景观交织的立体系统;又如苹果总部Apple Park,环形主楼环绕中央园林,辅以分散的服务节点,营造出封闭而开放的创新生态圈。

此类设计融合了效率、人性化与品牌形象塑造,常采用模块化单元、弹性接口与智能交通系统,支持未来的扩展与重组。其布局不再追求单一中心,而是构建一个多层级、可呼吸的城市片段。

---

结语:俯瞰视角的认知升维  
俯瞰图不仅是视觉图像,更是一种认知工具——它让我们超越个体尺度的体验,进入宏观系统的理解。无论是体现权力秩序的对称构图、根植地方文化的有机聚落,还是彰显技术美学的几何抽象,抑或是融入自然的生态回应与面向未来的复合结构,这些空中视角都在诉说着建筑如何回应时代精神、地理条件与人类行为。

进一步而言,随着无人机摄影、GIS分析与数字孪生技术的发展,建筑的鸟瞰研究已从静态描述转向动态模拟,能够追踪人流、光热变化与碳排放轨迹,使设计更加科学与可持续。因此,解读俯瞰图,实则是解读文明的空间密码。
1条评分金币+6
huozm32831 金币 +6 - 2025-12-12
如何不发帖就快速得到金币道行
 
快速回复
限120 字节
认真回复加分,灌水扣分~
 
上一个 下一个