查看完整版本: [-- 东莞在地新境:文化、工作与社区的交汇处 / 叠术建筑[31P] --]

武当休闲山庄 -> 无奇不有 -> 东莞在地新境:文化、工作与社区的交汇处 / 叠术建筑[31P] [打印本页] 登录 -> 注册 -> 回复主题 -> 发表主题

jjybzxw 2025-11-24 08:55


© CreatAR
“在地新境”是位于中国东莞的一座全新市政地标——东莞坐落于粤港澳大湾区的核心地带,以其迅速的城市转型而闻名。项目目标是打造一个为文化、工作与社区而设的“层叠景观”,将市政厅、文化中心、剧院、社区空间及办公功能整合为一个相互连结的综合体。



▲项目鸟瞰© CreatAR
在东莞高密度的摩天楼天际线中,由Superimpose叠术建筑主持设计的“在地新境”,重新定义了市民中心的可能性。它不是一个单一庞大的体量,而是以一系列向上层叠的露台展开,不仅呼应周边的山势,同时以大胆而亲和的姿态融入城市肌理。整个项目的锚点,是由三栋建筑围合出的中央庭院——一个安静且绿意盎然的的“城市客厅”,为社区提供一个开放、社交的核心空间。
▲场地轴测图© Superimpose叠术建筑

▲中央庭院© CreatAR



▲庭院内部步道© CreatAR
位于西侧的建筑是整个项目的文化核心。这里汇聚着各种公共空间:市政厅、社区空间、零售及剧院以堆叠和错动的方式组合,形成充满张力的构图。建筑体量的每一次横向错位都产生不同的功能空间,同时也创造出供用户在户外交流的露台。在室内,则是通过层层相连的楼梯在一个高挑的中庭内串联各层空间,充满自然光与动态的流动感。


▲堆叠和错动© CreatAR
建筑立面进一步将多样性统一整合:竖向框架、富有层次的横向楼板以及半透明玻璃相互呼应,在开放性与私密性中达到平衡。通透的首层邀请公众进入,中间的建筑体量被磨砂玻璃包裹,承载社区空间;而顶部的体量以丝网印刷玻璃为主,内部为剧院与公共大堂。露台与天花处的温润木质饰面为建筑增添了温度。

▲磨砂与丝网印刷玻璃© CreatAR


▲一层主入口© CreatAR
在项目的南侧与东侧,两栋办公楼延续了体量错动与层叠露台的建筑语言。Superimpose叠术建筑从设计开始就与业主紧密合作,将建筑表达与灵活、可持续的租赁策略相结合,使最终的建筑更好的适应其灵活商业策略,每栋垂直分区以容纳两组独立租户,配有专属入口与大堂。这一策略不仅将项目商业潜力最大化,也将客户需求与未来工作模式演变的理解清晰体现。

▲办公及零售大楼轴测图© Superimpose叠术建筑

▲办公楼© CreatAR

▲办公楼入口© CreatAR
整体建筑有大量自然光通过竖向天井与透明的流线空间深入室内,营造出明亮、健康、宜人的工作环境。白色铝制立面与细长竖向遮阳肋片共同过滤阳光,确保用户在亚热带气候下使用的舒适性。这些建筑共同展示了深思熟虑的建筑设计如何在回应业主诉求的同时,创造出灵活、高效、以人为本的新一代办公场所。

▲充足的采光与开放式楼梯© CreatAR

▲通透© CreatAR
“在地新境”超越了其物理形式,更象征着一种关于当代市政建筑应如何服务城市的新思维。在后疫情时代,公共建筑必须具备灵活性、多功能性与社会包容性。“在地新境”打破了传统的单一用途空间,将文化、市政与商业功能相互叠合,确保全天候充满活力。这种多层次的策略减少了低使用率的空间,降低了新建项目的环境足迹,并强化了社会与生态的可持续性。

▲人,自然,建筑© CreatAR
通过将多样的城市功能融合于一个层叠式景观之中,“在地新境”不仅仅是一座建筑,更是当代市民中心的新原型:开放、灵活、并深度连接于其社区之中。

▲夜景© CreatAR

▲立面细节© CreatAR
项目图纸

▲场地总平面图© Superimpose叠术建筑

▲南立面图© Superimpose叠术建筑

▲西立面图© Superimpose叠术建筑
▲东立面图© Superimpose叠术建筑



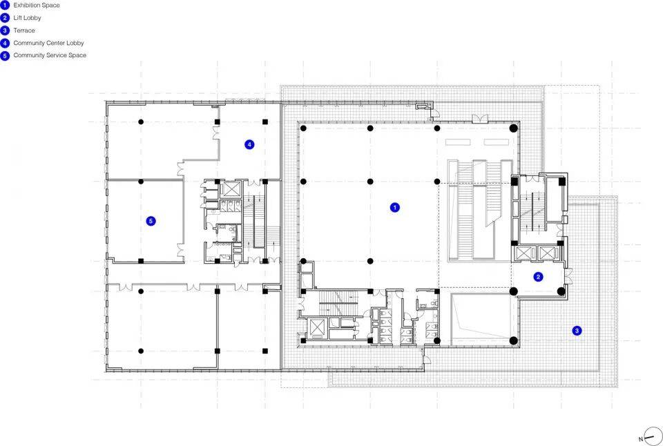
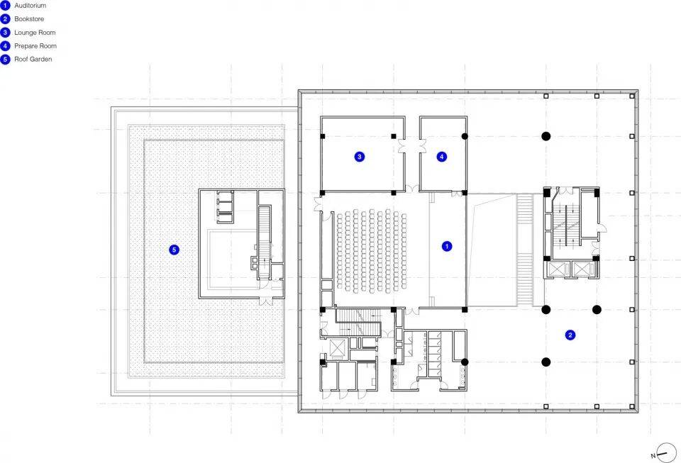
▲社区文化中心平面图© Superimpose叠术建筑


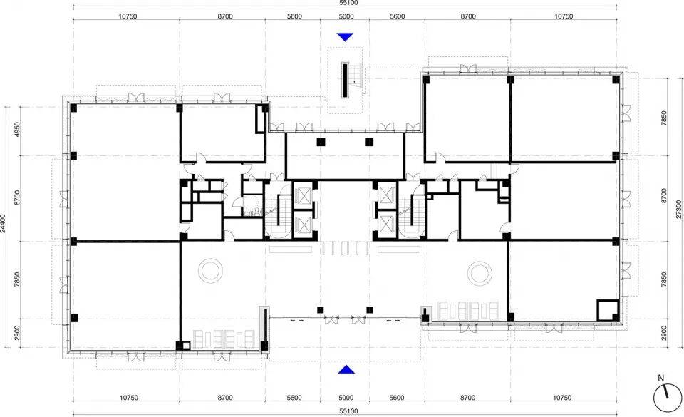
▲办公及零售大楼平面图© Superimpose叠术建筑

▲细节大样图© Superimpose叠术建筑
项目名: 在地新境:文化、工作与社区的交汇处
项目地: 东莞市南城区
功能: 混合功能,文化&办公
设计范围: 建筑设计
设计时间: 2022年10月-2023年09月
完成时间: 2025年10月
业主: 东莞市万亨房地产有限公司
建筑面积: 19369平方米
设计公司: Superimpose叠术建筑
设计团队: 博乐文,梁励德,博德朗,Ana Raluca Timisescu,许潇予,陈显鸿,曲海波
设计院: 华阳国际设计集团
景观设计: 上海朗道景观规划设计有限公司
幕墙顾问: 深圳市朋格幕墙设计咨询有限公司
施工方: 深圳市瑞玮工程有限公司
照片: CreatAR

jjybzxw 2025-11-24 08:55
东莞新市政地标“在地新境”坐落于粤港澳大湾区核心地带,其命名本身即蕴含深意——“在地”强调根植于本土文脉与城市肌理,“新境”则指向一种超越传统功能分区的未来城市图景。该项目不仅是行政职能的空间载体,更试图成为融合文化认同、创新工作模式与社区共生的复合型城市引擎。以下从五个维度系统解析其如何打造文化、工作与社区的层叠景观,展现一种“立体共栖”的城市营造范式。

---

一、文化层:激活岭南记忆的当代转译
“在地新境”并非以博物馆式的静态展示来诠释文化,而是通过空间叙事实现对岭南文脉的活化重构。  
- 水网肌理的空间再现:东莞地处珠江三角洲水乡腹地,项目提取河涌交错、桥巷相连的传统聚落特征,在建筑群布局中引入蜿蜒的公共水道与架空廊桥,使市民在穿行中重拾“依水而居”的集体记忆。  
- 材料语言的地域表达:外立面采用改良版岭南青砖与现代陶板结合的复合幕墙系统,在光影变化中呈现温润质感;室内大量使用本地竹编工艺与再生木构,将手作温度融入公共空间。  
- 节庆场景的制度性嵌入:设置“民俗回响厅”与可变式广场,每年定期举办龙舟启动仪式、粤剧快闪、醒狮巡游等活动,使传统文化不再是展览品,而是持续发生的社区事件。

> 深层意图解读:用户关注“文化”而非“建筑”,暗示对身份认同的焦虑。在全球化同质化趋势下,东莞需重建文化自信。“在地新境”实为一场“场所精神”的复兴运动,通过可感知、可参与的设计策略,将抽象的文化转化为身体经验。

---

二、工作层:重塑政务空间的开放性革命
传统市政厅常被视为封闭权威的象征,而“在地新境”彻底颠覆这一范式,构建“透明治理+创新服务”的双轨工作机制。  
- 去中心化的功能分布:打破集中式办公楼模式,将审批窗口、咨询中心、数字政务终端分散嵌入商业街、公园节点与交通接驳处,形成“15分钟便民服务圈”。  
- 政企社协同创新实验室:设立“湾区政策沙盒区”,邀请企业、高校、NGO共同参与智慧城市试点项目(如AI民生诉求响应系统),让政府从管理者转型为协作者。  
- 可视化决策机制:主楼中庭设置巨型动态数据墙,实时呈现财政支出流向、重大项目进度与民意反馈热力图,实现权力运行的物理透明化。

> 创新延伸思考:此设计回应了大湾区城市群竞争中的“软实力”需求——高效的公共服务已成为吸引人才与投资的关键基础设施。“在地新境”本质上是“政务服务的产品化升级”,用用户体验思维重构官民关系。

---

三、社区层:编织多元主体的共生网络
项目拒绝成为孤岛式的地标,而是作为“社区发生器”,主动缝合周边城中村、产业园区与生态绿地之间的断裂带。  
- 垂直混合的社会结构:底层为24小时开放的市集与共享厨房,中层配置青年创客公寓与银发学习中心,顶层则布局屋顶农园与观星平台,实现全龄段、全阶层的空间共存。  
- 产权共享的新集体经济:周边居民可通过“社区积分”认购部分商业铺面收益权,并参与运营分红,使物理空间真正成为共有资产。  
- 慢行系统的社会连接:构建长达8公里的无车化环线,串联地铁站、学校、医院与湿地公园,鼓励非正式社交的发生——研究表明,步行通勤者比驾车者平均每月多进行17次邻里互动。

> 社会学视角补充:该模式暗合哈贝马斯“公共领域”理论,但更具中国情境适应性。它不依赖纯粹理性辩论,而是通过日常生活的交织(买菜、遛娃、晨练)建立信任资本,从而缓解城市化进程中的社会疏离。

---

四、生态层:构建韧性城市的代谢系统
在气候变化与高密度开发双重压力下,“在地新境”将生态视为基础性基础设施而非装饰元素。  
- 水资源闭环管理:收集雨水用于景观灌溉与冲厕,经人工湿地净化后的灰水再补给河道,年节水率达63%。  
- 微气候主动调节:利用CFD模拟优化建筑朝向与遮阳体系,配合垂直绿化与地面透水铺装,使场地区域夏季均温较周边低2.4℃。  
- 生物多样性走廊:在屋顶设置蜜源植物带与昆虫旅馆,吸引传粉生物迁徙停留,已被记录到12种本地蝶类与3种候鸟短暂停栖。

> 环境伦理深化:此举超越了绿色建筑的技术清单,体现了一种“非人类中心主义”的空间伦理——城市不仅是为人服务的机器,更是生命共同体的栖居之所。

---

五、技术层:虚实融合的智慧生长机制
作为大湾区数字化前沿阵地,项目植入一套持续进化的智能中枢系统。  
- 数字孪生城市平台:整合BIM模型、IoT传感器与GIS数据,实现能耗监测、人流预测与应急调度的一体化管控。  
- AR增强的地方认知:市民通过手机扫描特定墙面,即可观看该地块百年来的历史影像叠加现实场景,形成“时空折叠”的沉浸体验。  
- 算法驱动的动态调整:公共座椅布局、灯光亮度甚至喷泉节奏均可根据实时行为数据分析自动优化,使空间具备“学习能力”。

> 哲学层面反思:技术在此不是冰冷工具,而是促成“人—地—技”三元共鸣的媒介。当算法能理解并回应地方情感时,智慧城市才真正拥有了灵魂。

---

结语:一种“层叠景观”的范式意义
“在地新境”之所以突破常规,在于它拒绝单一逻辑主导城市发展。文化不是点缀,工作不是负担,社区不是容器,生态不是成本,技术不是目的——它们在同一空间中垂直叠加、水平渗透、动态互构,形成类似地质断层般的丰富剖面。这种“层叠性”正是应对复杂城市问题的核心智慧:不追求简单答案,而在矛盾中创造共生可能。

该项目也为粤港澳大湾区提供了关键启示——未来的城市竞争力,不在于谁建得更高更快,而在于谁能更深刻地理解“何为值得过的生活”。当一座市政建筑能让公务员在处理社保申请时听见孩童在隔壁庭院诵读童谣,让创业者在咖啡馆谈融资时瞥见老人在屋顶菜园采摘番茄,它便已完成了从“权力象征”到“生活诗学”的伟大跃迁。



查看完整版本: [-- 东莞在地新境:文化、工作与社区的交汇处 / 叠术建筑[31P] --] [-- top --]


Powered by www.wdsz.net v8.7.1 Code ©2005-2018www.wdsz.net
Gzip enabled


沪ICP备:05041533号