切换到宽版
  • 118阅读
  • 2回复

[奇观]无锡市救助管理站 / 江苏博森建筑设计有限公司//台州Aspoon Coffee / 植入设计[51P] [复制链接]

上一主题 下一主题
在线jjybzxw

UID: 551814

 

发帖
236414
金币
815858
道行
2006
原创
2459
奖券
3500
斑龄
44
道券
1548
获奖
0
座驾
设备
摄影级
在线时间: 50389(小时)
注册时间: 2008-10-01
最后登录: 2026-03-25
只看楼主 倒序阅读 楼主  发表于: 03-07
— 本帖被 xgch 执行加亮操作(2026-03-07) —
无锡市救助管理站 / 江苏博森建筑设计有限公司[33P]

01.
基地概况:繁华市区的江南栖居
无锡市救助管理站地处无锡市中心城区的核心腹地,与无锡火车站直线距离仅 500 米。地块南北狭长,东西宽 37-56 米,南北长约 160 米。如何在局促场地上为遇困者筑就一方避世暖隅,又如何让建筑融江南气韵、彰城市温情,是我们设计的核心命题。

项目区位 ©博森设计

实景融合效果图 ©博森设计
02.
“家”的记忆:复现江南传统聚落形态
我们以江南传统聚落的空间肌理为灵感原点,巧妙契合场地南北狭长的特质,将功能化整为零,引入层层递进的叠院形制,以院落围合、连廊婉转、街巷错落的格局,为临时遇困者重构一份关于 “家” 的温暖空间记忆。

建成总图 ©博森设计

叠院式布局t ©博森设计

实体模型 ©博森设计

项目鸟瞰 ©博森设计

沿街界面 ©博森设计

沿街界面 ©博森设计
粉墙黛瓦的清雅质感、错落有致的叠院层次、移步换景的街巷尺度,这些深植于江南人居血脉的空间语言,被悉数转译至建筑设计之中。让每一位踏足此处的人,都能在熟悉的聚落肌理里,卸下一路漂泊的疲惫,寻回那份久违的安稳与归属感。

体块生成 ©博森设计

沿街界面 ©博森设计

活动庭院内景 ©博森设计

起伏的屋檐天际线 ©博森设计

围墙细节 ©博森设计
03.
院落景观:框景与借景的现代演绎
巧妙利用双廊(交通廊与观察廊),把多个功能区围合形成庭院,设计吸取中国传统园林框景、借景的造园范式并予以现代转译,通过对视线的精准引导与空间层次的递进营造,使狭长场地的每一处维度均转化为富有叙事性的景观节点。

礼仪庭院内景 ©博森设计

步行连廊 ©博森设计

庭院内景 ©博森设计

活动庭院内景 ©博森设计

立面细节 ©博森设计
04.
立面构思:虚实相生,刚柔并济
立面设计通过山墙实体界面与格栅渗透界面相对比形成视觉张力,同时以曲线起伏的檐口打破直线条的冷峻感,实现结构刚劲与形态柔美的有机统一,塑造出兼具秩序感与江南气韵的建筑风貌。

项目鸟瞰 ©博森设计

沿街界面 ©博森设计

虚实结合的立面元素 ©博森设计

虚实结合的立面元素 ©博森设计
05.
功能分区:轴线织构,动静共生
项目以南北向站区生态发展轴贯穿狭长基地,串联起三大功能组团与五大景观院落,构建出层次分明的空间秩序。通过共享大厅整合并串联各类公共功能空间,通过开放式布局促进受助人员的多元交流,营造宽松舒适的互动氛围。

功能分布 ©博森设计

共享大厅 ©博森设计

救助寝室 ©博森设计

宣泄室 ©博森设计

总平面图 ©博森设计

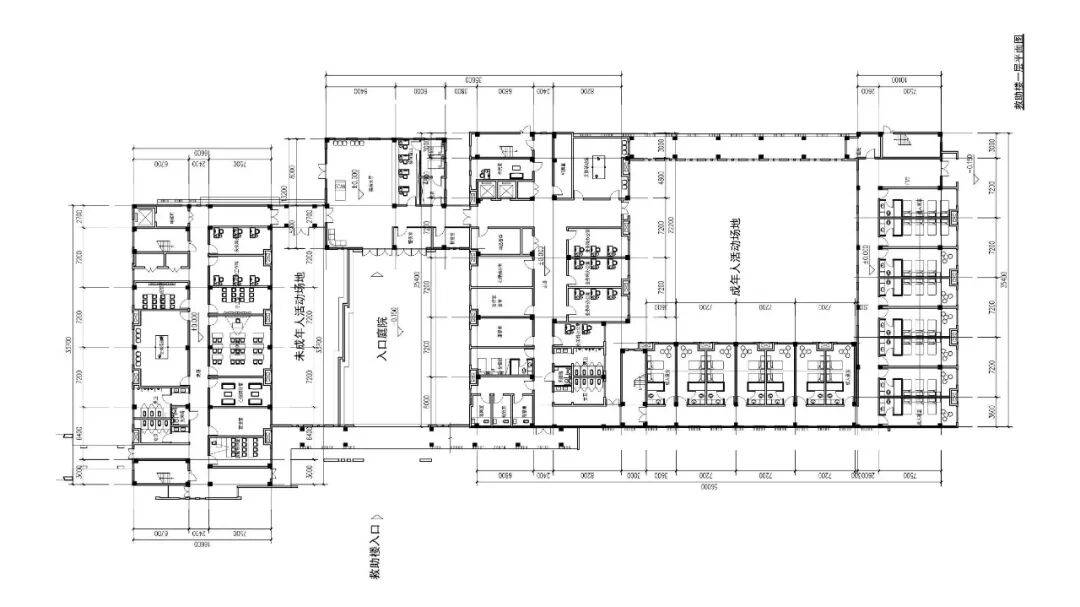
救助楼一层平面图 ©博森设计

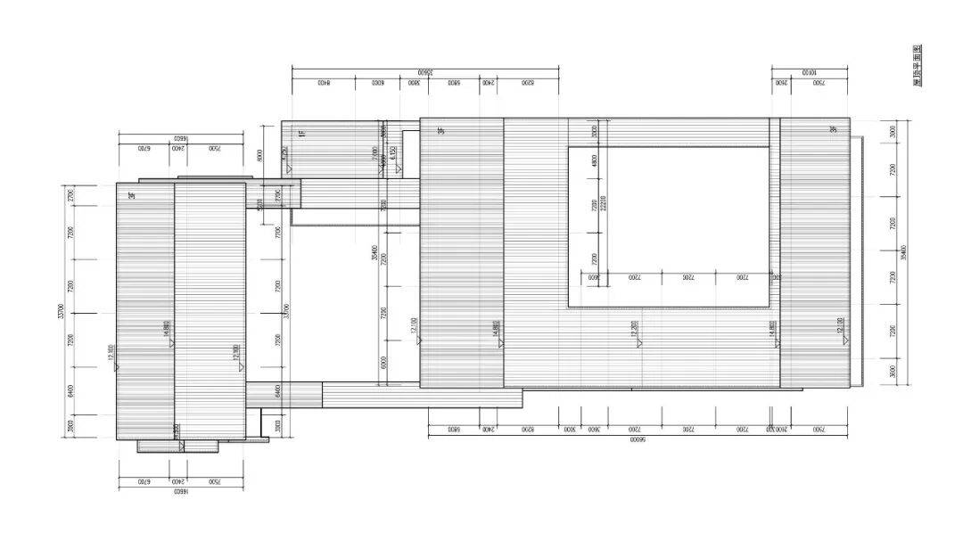
救助楼二层平面图 ©博森设计

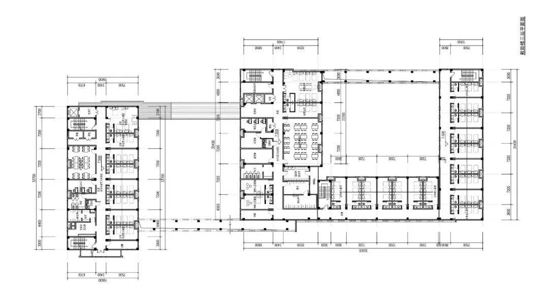
救助楼三层平面图 ©博森设计

救助楼屋顶层平面图 ©博森设计

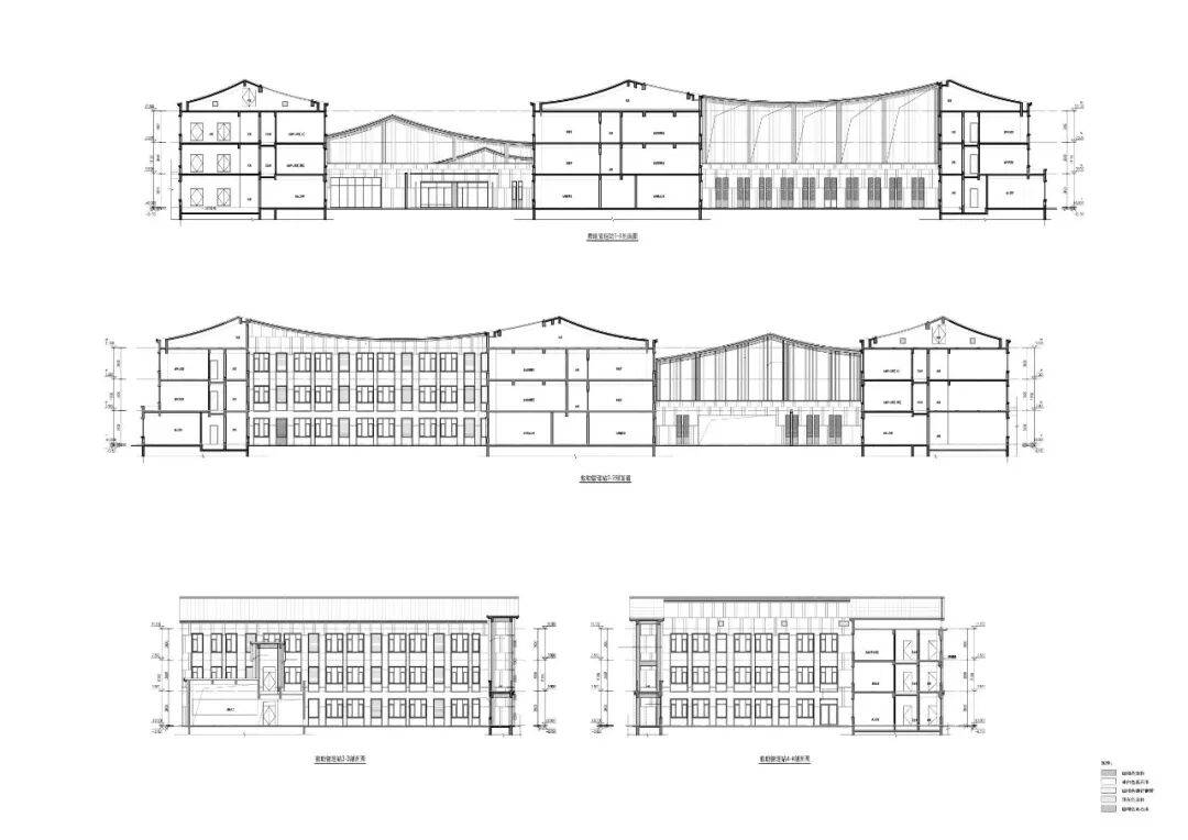
救助管理站立面图 ©博森设计

剖面图 ©博森设计
项目名称:无锡市救助管理站
项目类型:公共职能建筑、服务设施
设计方:江苏博森建筑设计有限公司
项目设计:2021年
完成年份:2023年
设计团队:总建筑师:黄新煜
方案设计负责人:高宇、王庄
方案设计团队:朱旻、刘帅、邓雅雯、尤龙、陆雨瑶
施工图团队
建筑:袁启春、李蒙蒙
结构:殷丛春、孙小清
暖通:欧志刚、陈丽芳
电气:戴磊、王倩、金凌、丁训纲
给排水:史敖平、夏冰茜
景观设计团队:钱来高、华苗苗、钱梦菲、邹枫、管鑫娥、丁建、王磊、张羽凌
装饰设计:上海鉴美建筑装饰设计有限公司,杨芸
项目地址:中国无锡
用地面积:12247㎡
建筑面积:10060㎡
摄影版权:博森设计
业主:无锡市城市重点建设项目管理中心
材料:铝方通、真石漆
========================================================================================================================================

台州Aspoon Coffee / 植入设计[18P]


▼店铺外观 © 庸人才


▼轴测分析图 © 植入设计

一勺咖啡位于浙江台州一处街区转角,沿街树木形成连续的城市界面。空间从转角所具备的公共属性出发,将其理解为街区流动中的一个空间节点,使场所以一种开放的状态融入街区的日常环境之中。
▼轴测图 © 植入设计

建筑以通透的立方体体块嵌入街角,一、二层采用大面积玻璃立面,引入自然采光与街道景观。店铺不设单一主入口,一层沿街两侧均可进入,以回应多向到达的使用需求。
▼店铺外观细部 © 庸人才

▼室内空间概览 © 庸人才



吧台呈转角形态布置,可同时服务来自不同方向的顾客,并在有限尺度中组织出清晰的动线关系。
▼室内空间概览 © 庸人才

▼二层室内空间概览 © 庸人才


▼开放的空间氛围 © 庸人才

二层通过整扇可开启的落地窗与街道建立联系,使上层空间获得与街区并行的使用状态,强化整体空间在垂直方向上的连续性。
▼家具细部 © 庸人才


▼细部 © 庸人才

项目以明确的功能组织与克制的设计语言,建立建筑与街区之间稳定而日常的使用关系,使场所自然融入周边的生活语境。
▼平面图 © 植入设计

项目名称:一勺咖啡
设计单位:植入设计
项目竣工:2026.1
主创及设计团队:刘杰、卢浩、姚鑫
项目地址:浙江省,台州市
建筑面积:60㎡
摄影版权:庸人才

1条评分金币+35
xgch 金币 +35 辛苦了,感谢您无私奉献的精神! 03-07
山庄提示: 道行不够,道券不够?---☆点此充值☆
 
在线jjybzxw

UID: 551814


发帖
236414
金币
815858
道行
2006
原创
2459
奖券
3500
斑龄
44
道券
1548
获奖
0
座驾
设备
摄影级
在线时间: 50389(小时)
注册时间: 2008-10-01
最后登录: 2026-03-25
只看该作者 沙发  发表于: 03-07
无锡市救助管理站:江南气韵的现代演绎

无锡市救助管理站的设计,以江南传统聚落的空间肌理为灵感,巧妙地利用了场地南北狭长的特质,将功能化整为零,引入层层递进的叠院形制。这样的设计不仅为临时遇困者重构了一份关于“家”的温暖空间记忆,也让建筑融入了江南气韵,彰显了城市温情。
建筑与环境:复现江南传统聚落形态

设计团队以江南传统聚落的空间肌理为灵感原点,巧妙契合场地南北狭长的特质,将功能化整为零,引入层层递进的叠院形制。这样的设计使得建筑沿街界面呈现出粉墙黛瓦的清雅质感、错落有致的叠院层次、移步换景的街巷尺度,这些深植于江南人居血脉的空间语言,让每一位踏足此处的人,都能在熟悉的聚落肌理里,卸下一路漂泊的疲惫,寻回那份久违的安稳与归属感。
立面构思:虚实相生,刚柔并济

立面设计通过山墙实体界面与格栅渗透界面相对比形成视觉张力,同时以曲线起伏的檐口打破直线条的冷峻感,实现结构刚劲与形态柔美的有机统一,塑造出兼具秩序感与江南气韵的建筑风貌。这样的设计不仅让建筑在视觉上更加和谐,也使得建筑与周围环境更加融合。
功能分区:轴线织构,动静共生

项目以南北向站区生态发展轴贯穿狭长基地,串联起三大功能组团与五大景观院落,构建出层次分明的空间秩序。通过共享大厅整合并串联各类公共功能空间,通过开放式布局促进受助人员的多元交流,营造宽松舒适的互动氛围。这样的设计使得救助管理站不仅是一个临时避难所,更成为一个社区活动中心。
院落景观:框景与借景的现代演绎设计团队巧妙利用双廊(交通廊与观察廊),把多个功能区围合形成庭院,设计吸取中国传统园林框景、借景的造园范式并予以现代转译,通过对视线的精准引导与空间层次的递进营造,使狭长场地的每一处维度均转化为富有叙事性的景观节点。这样的设计使得救助管理站的院落景观既具有现代感,又不失传统韵味。

无锡市救助管理站的设计,不仅为遇困者提供了一个避风港,也让无锡市中心城区的核心腹地多了一处具有江南气韵的现代建筑。这座建筑以其独特的设计,成为了无锡市的一个新的地标性建筑。

1条评分金币+6
xgch 金币 +6 回复认真,加分鼓励 03-07
如何不发帖就快速得到金币道行
 
在线姜谷粉丝

UID: 1569053

精华: 2
级别: 玉清道君

发帖
176280
金币
577605
道行
20030
原创
769
奖券
432
斑龄
0
道券
30
获奖
0
座驾
设备
摄影级
在线时间: 22057(小时)
注册时间: 2012-06-21
最后登录: 2026-03-24
只看该作者 板凳  发表于: 03-07
主要职能:
为符合条件的求助人员(如流浪乞讨人员)提供救助服务。
为困境未成年人提供临时监护、心理疏导及社会融入支持。
为遭受家庭暴力侵害的人员提供临时庇护。
机构全称:无锡市救助管理站(同时挂牌“无锡市未成年人救助保护中心”和“无锡市反家庭暴力庇护所”)。
2. 江苏博森建筑设计有限公司
成立时间:1985年9月20日。
注册资本:1339.494万元人民币(实缴)。
核心业务:
建筑工程设计(甲级资质)、岩土工程勘察与设计(甲级)。
风景园林设计(乙级)、工程咨询(丙级)、工程测量(丙级)。
其他信息:
参保人数278人,人员规模200-299人。
通过质量、环境、职业健康安全管理体系认证。
3. 台州Aspoon Coffee
类型:咖啡品牌或门店(具体信息未在搜索结果中提供)。
推测业务:基于名称,可能主营咖啡饮品及相关轻食服务。
4. 植入设计
类型:设计工作室或公司(具体信息未在搜索结果中提供)。
推测业务:可能专注于空间设计、品牌视觉或产品设计等领域。
注:关于“台州Aspoon Coffee”和“植入设计”,因搜索结果未提供详细信息,以上内容基于名称推断。
1条评分金币+6
xgch 金币 +6 回复认真,加分鼓励 03-07
如何不发帖就快速得到金币道行
 
我有我可以
快速回复
限120 字节
认真回复加分,灌水扣分~
 
上一个 下一个