切换到宽版
  • 19阅读
  • 2回复

[奇观]深圳绿洲小学 - 村城中的校园 / 东西影工作室[65P] [复制链接]

上一主题 下一主题
在线jjybzxw

UID: 551814

 

发帖
223406
金币
706111
道行
2006
原创
2450
奖券
3340
斑龄
42
道券
1233
获奖
0
座驾
设备
摄影级
在线时间: 48267(小时)
注册时间: 2008-10-01
最后登录: 2026-02-01
只看楼主 倒序阅读 使用道具 楼主  发表于: 昨天 10:11

新洲是深圳福田中心区南侧重要的居住生活区,多年的商住与城中村并置,丰富的城市肌理形成多样的社区与街道生活。本人早年落脚深圳,也曾在新洲居住7年,它或许不够“美观”,不够“高效”,却提供了标准化城市开发中日益稀缺的东西:生活的偶然性、社会的多样性、空间的包容性与成长的有机性,这里是一面诚实的镜子,映照出一座超级城市在宏伟叙事之下,细腻而坚韧的日常生活原力。

场地分析

场地照片
场地西南侧福强路是城市主干道,噪音较大。西北新洲五街,东北侧新洲七街为城市支路是建筑组织出入的主要界面。项目整体容积率2.26,是深圳高密度校园的典型。规避噪音,“上天下地”寻找空间,很快通过多方案比较得到了一个较为理性的总体布局,随后便展开建筑的设计。

工作模型照片

模型照片

©樊钊明
©在场造象
开放共享式教育
开放式学校出现在上世纪50年代美国,它打破年级界限,把各式电子教学设施集中起来形成全校的教学情报资料中心。这个空间通常布置在校园平面的中心部位, 形成一个多功能综合性的“学习中心”。


美国西雅图华利达中学平面
概念草图
绿洲小学的设计以“U”型半围合的院子为类型作为空间原型,普通教室单元布置在周边,把所有共享功能,绿化围绕中庭展开,形成一个开放共享教育的发生场地。


©樊钊明
中央庭院不仅是视觉焦点,更是学校各类活动的核心舞台。图书馆、报告厅、体育馆、游泳馆、艺术教室、科学实验室等共享功能空间面向庭院开放,使学习从封闭的教室延伸到整个校园。这种布局鼓励跨年级交流、激发偶然相遇与知识碰撞,将“开放教育”理念具象化为可感知、可体验的空间现实。
多零层活动平台
通过水平楼板组织活动空间,强调建筑的水平性,楼板截面整合空调、设备管线,形成一块纯粹的“板”,层与层交错,富有变化。

设计草图
课间十分钟通常被认为是“无法有效利用的碎片时间”,但在绿洲小学,这段短暂的时间被赋予了新的价值。学生只需几步就能从教室来到平台,享受阳光、新鲜空气和短暂的游戏。这种设计深刻理解儿童行为特征——他们需要频繁的休息和活动来维持注意力,而非长时间困在固定座位上。

©方芳

©方芳

©樊钊明

©方芳

©樊钊明

©樊钊明

©方芳
垂直维度的平等化:传统教学楼中,高层班级的学生往往难以在课间到达地面活动场地。多平台设计消除了这种垂直不平等,确保每个学生,无论所在楼层高低,都能平等享受活动空间。这些平台不仅是过渡区域,更是小型社交中心、临时展览空间和非正式学习场所,极大地丰富了校园生活的层次。
同时,我们在这些平板之中“随意”放置了若干的“异物”,与学生相遇,成为日常的”玩具”。

©樊钊明

图书馆室内照片©樊钊明

©樊钊明

©方芳

©王照明

©王照明

©方芳

©袁小宜

©袁小宜

©袁小宜

©朱雄毅
多孔、开放的校园
在深圳湿热的气候条件下,多孔设计促进了自然通风和散热。错落有致的开口形成风道,引导气流穿越建筑群;遮阳设施与绿植结合,创造了舒适的微气候。这种设计既降低了能耗,也让学生亲身体验可持续设计的价值。

设计草图

©樊钊明

©樊钊明

©樊钊明

©樊钊明

©樊钊明

©朱雄毅
高密度之后
在深圳持续演进的新校园建设中,应对高密度挑战的设计策略已日趋完善,形成一套成熟而富有弹性的“工具包”。高密度不再必然指向压抑与单调,反而能被转化为塑造场所特色、激发空间潜力的独特机遇。
解决高密度问题之后,我们的目光终究需要回归到教育与空间的本质关系上。通过多次的回访与观察,我们发现这所嵌入城中村的校园,其内在气质似乎也悄然浸润着新洲社区特有的环境氛围。在这里,过度的管控与约束悄然退场,取而代之的是一份自然而生的自由与轻松。令人欣慰的是,这种氛围让空间的使用方式,在很大程度上贴近了设计最初的构想与期待——空间与行为之间,呈现出一种少见的、良性而活泼的默契。

©樊钊明



©朱雄毅

©方芳

©朱雄毅

©樊钊明

游泳馆室内照片©樊钊明

体育馆室内照片©方芳

食堂室内照片©袁小宜

报告厅室内照片©廖洪锋

报告厅吊顶照片©廖洪锋

施工过程©王照明

施工过程©朱雄毅

施工过程©朱雄毅

施工过程©朱雄毅

施工过程©朱雄毅
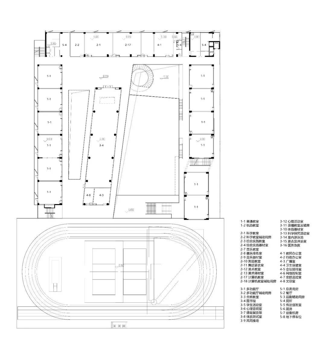
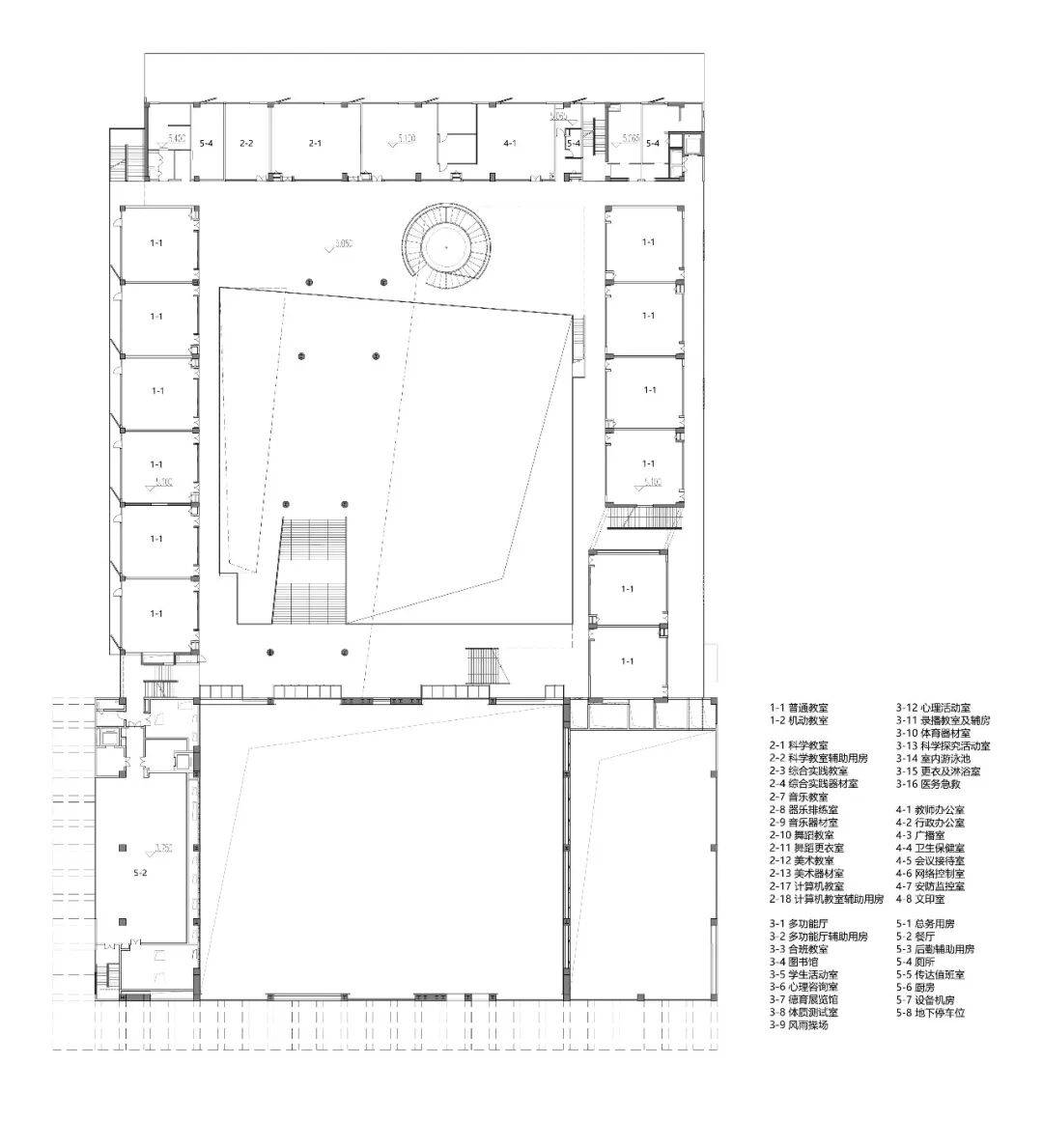
技术图纸

总平面图

负二层平面图

负一层平面图

一层平面图

二层平面图

三层平面图

四层平面图

五层平面图

六层平面图

屋顶平面图

东西剖视图

南北剖视图

节点图

节点图
项目名称:深圳绿洲小学
用地面积:10497.28平方米
总建筑面积:35985平方米
班数:36班
容积率:2.26
建筑高度:23.85米
设计时间:2019年
开业时间:2024年
设计团队:悉地国际东西影工作室
主创建筑师:朱雄毅、王照明
方案设计团队:余陈华、廖洪锋、林华妹、罗哲志、薛梦琦、夏坚强、詹文泽、林兆锦
施工图设计团队:
建筑:朱宁、宋洪波、贾翀赫、彭玉凤、崔文武、方若慧、李海福
总图:曹韶辉、杜国涛、高彤
结构:孙素文、黄建羽、王文涛、刘威、罗涛
机电:朱永斌、杨德志、姚京辉、刘康荣、张维业、杨纪超、康少军、黄嘉伟、刘俊、谭晓军、唐平成、陈多纳
幕墙:方志江、刘志鹏、刘洋、陈武林
造价:朱赛花
景观:汪春厚、伍艳瑜、杨丽娟、陈诚、戴超、崔敏、黄燚、鄢小娜
室内:深圳卓艺装饰设计工程有限公司
标识:深圳市自由空间标识有限公司
山庄提示: 道行不够,道券不够?---☆点此充值☆
 
在线jjybzxw

UID: 551814


发帖
223406
金币
706111
道行
2006
原创
2450
奖券
3340
斑龄
42
道券
1233
获奖
0
座驾
设备
摄影级
在线时间: 48267(小时)
注册时间: 2008-10-01
最后登录: 2026-02-01
只看该作者 沙发  发表于: 昨天 10:12
Re:深圳绿洲小学 - 村城中的校园 / 东西影工作室[61P]


深圳绿洲小学的设计以“开放共享、自然融合、高密度下的空间创新”为核心,在新洲片区商住与城中村交织的复杂肌理中,构建了一所兼具功能性与人文温度的现代化校园,具体设计亮点如下:
一、场地应对:高密度下的“上天下地”策略  
场地位于福田区新洲五街与七街交汇处,西南侧临城市主干道福强路(噪音较大),容积率2.26,是深圳高密度校园的典型代表。设计通过“上天下地”策略化解空间约束:垂直向利用屋顶、多层平台拓展活动空间,水平向通过错层布局形成丰富的立体院落,既规避了主干道噪音干扰,又在有限用地内实现了36班规模(原24班)的教学需求,总建筑面积达35985平方米。
二、开放共享的教育空间原型  
以“U型半围合庭院”为空间核心,重构传统校园布局:  
功能分区:普通教室单元沿周边布置,图书馆、报告厅、体育馆、游泳馆、艺术教室等共享功能围绕中央庭院展开,形成“学习中心”——借鉴美国开放式学校理念,打破封闭教室边界,使学习从室内延伸至整个校园,鼓励跨年级交流与偶然知识碰撞。  
中央庭院:作为视觉焦点与活动舞台,连接各功能空间,成为集会、展览、课余互动的核心场所,实现“开放教育”理念的空间具象化。
三、多零层活动平台:碎片化时间的价值激活  
针对儿童行为特征,设计通过水平楼板交错形成多层活动平台,赋予“课间十分钟”新意义:  
垂直平等:打破传统教学楼高层学生难以到达地面的局限,每层均设开放平台,确保不同楼层学生平等享受阳光、空气与活动空间。  
复合功能:平台不仅是过渡区域,更成为小型社交中心、临时展览区、非正式学习场所,甚至“随意”放置的“异物”(如趣味装置),成为学生日常探索的“玩具”,让空间充满自然生长的活力。
四、多孔开放的生态校园:气候适应性设计  
结合深圳湿热气候,采用“多孔”设计促进自然通风与散热:  
风道与遮阳:错落的建筑开口形成自然风道,引导气流穿越建筑群;遮阳设施与绿植结合,降低能耗的同时,创造舒适微气候,让学生直观体验可持续设计的价值。  
自然融合:将街道行道树转化为校园绿廊,建筑与周边环境有机共生,呼应“绿洲”之名,营造自然、舒适的教学氛围。
五、高密度下的场所精神:自由与包容的社区气质  
嵌入城中村的校园,延续了新洲社区“生活偶然性、社会多样性”的特质:设计弱化过度管控,以开放、灵活的空间鼓励自发行为——学生在平台奔跑、庭院交流、角落阅读,空间与行为形成良性默契,使校园成为“超级城市宏伟叙事下,细腻而坚韧的日常生活原力”的缩影。
项目档案  
用地面积:10497.28平方米  
总建筑面积:35985平方米  
班数:36班  
设计时间:2019年  
开业时间:2024年  
设计团队:悉地国际东西影工作室(主创建筑师:朱雄毅、王照明)  

绿洲小学以空间为媒介,将高密度约束转化为场所特色,重新定义了“开放教育”的空间形态,成为城市中兼具功能性与人文关怀的“学习绿洲”。

如何不发帖就快速得到金币道行
 
在线姜谷粉丝

UID: 1569053

精华: 2
级别: 玉清道君

发帖
170191
金币
516895
道行
20030
原创
768
奖券
368
斑龄
0
道券
30
获奖
0
座驾
设备
摄影级
在线时间: 21061(小时)
注册时间: 2012-06-21
最后登录: 2026-02-01
只看该作者 板凳  发表于: 昨天 17:51
深圳市福田区绿洲小学是一所由政府投资兴建的公办小学,位于城中村区域,近年来经历了重建升级;而“东西影工作室”是CCDI悉地国际旗下的建筑设计团队,参与了多个深圳城市更新与教育空间项目的设计工作。

📍 背景
深圳作为高密度城市,城中村学校长期面临空间紧张、设施陈旧等问题。为推进教育优质均衡,福田区自2017年起启动“城中村品牌学校提升行动”,对包括绿洲小学在内的多所学校进行改造或重建。与此同时,一批专注于城市空间更新的专业设计团队应运而生,其中CCDI东西影工作室在公共建筑尤其是校园设计领域有所实践。

🏫 深圳市福田区绿洲小学:从城中村学校到现代化校园
绿洲小学创办于1999年,原属典型的城中村配套学校。随着城市发展和学位需求增长,该校被列入改造计划。尽管最初规划为改扩建,但最终调整为整体拆除重建,以大幅提升办学条件

2024年9月,新校区正式启用,实现了硬件全面升级:

项目    内容
学校性质    公办小学
所属区域    深圳市福田区
开办时间    1999年
重建完成    2024年9月
占地面积    10497.28平方米
建筑面积    35985.00平方米
办学理念    绿色发展,和美之洲
特色项目    乒乓球传统校,设有校本课程
新校园配备网络多媒体教室62间、功能场馆30间,极大改善了教学环境。师资方面,现有教师职工101人,含高级教师11人、市级名优教师5人,校长为广东省首批骨干校长。

值得注意的是,在早期改造名单中,绿洲小学曾被临时替换为福南小学,以确保首批五所学校的改造进度不受影响,但其重建计划仍持续推进并最终落地29。

🎨 CCDI东西影工作室:城市空间的创意推动者
“东西影工作室”全称为CCDI东西影工作室,隶属于悉地国际(CCDI),是一家专注于建筑与空间设计的团队,尤其活跃于深圳的城市更新项目中。

该工作室参与了多项与教育及公共空间相关的建筑设计,例如:

物美科技南方总部(位于福田中心区)
深圳智能创科大厦
梧桐亭驿站等公共设施
其设计理念强调回应社会环境与使用需求,尝试在高密度城市中创造兼具功能性与人文性的空间。虽然目前公开资料未明确显示其直接参与绿洲小学的建筑设计,但其在深圳多个城市更新项目中的实践经验,体现了对“城中村校园升级”这类课题的专业关注。

✅ 建议
如果你正在了解绿洲小学是否值得就读,可以重点关注其重建后的新校园环境、师资配置及乒乓球特色课程;若你关心城市更新类建筑设计,则可进一步查阅CCDI东西影工作室的其他案例,如新沙小学、教科院附小等同批改造项目,观察其设计语言的一致性。
如何不发帖就快速得到金币道行
 
我有我可以
快速回复
限120 字节
认真回复加分,灌水扣分~
 
上一个 下一个