切换到宽版
  • 128阅读
  • 2回复

[奇观]深圳明德五洲小学 / 众建筑[50P] [复制链接]

上一主题 下一主题
在线jjybzxw

UID: 551814

 

发帖
220875
金币
684811
道行
2006
原创
2450
奖券
3340
斑龄
42
道券
1233
获奖
0
座驾
设备
摄影级
在线时间: 48021(小时)
注册时间: 2008-10-01
最后登录: 2026-01-22
— 本帖被 xgch 执行加亮操作(2026-01-13) —


© 朱雨蒙
明德五洲小学是一个学习的地景校园,是强调好奇心、探索发现和动手实践的空间环境。
随着深圳从工业经济向创新驱动型经济转型,教育的重心正由“流水线”式的学习模式转向注重创造力与游戏化探索的学习模式。位于深圳市中心的五洲小学,通过重新审视空间如何塑造日常教育体验,对这一转变做出了积极响应。

© 朱雨蒙

© 朱雨蒙

© 众建筑

分层轴测图 © 众建筑
这所公立学校被构思为一个立体的“学习地景”,在空间上呼应了强调好奇心、探索发现和动手实践的教学理念。学习不再局限于刻板排列的教室和走廊,而是发生在由多样化的空间所构成的流动场域中。这种多层次的空间支持各种学习和互动模式,在鼓励以学生为中心的同时,也使校园能够随着教育需求的演变而灵活调整。

© 朱雨蒙

自然以“立体学习景观”的形式置入城市 © 众建筑

景观地形的生成 © 众建筑

剖透视 © 众建筑
教室之外的环境被视为同等重要的学习场所。架空的户外区域、各种可供使用的建筑形体与部件,以及向外敞开的教室,模糊了室内与室外的边界。户外学习让学生们得以摆脱课桌的束缚,创造了动手实验以及与大自然直接互动的机会。

© 众建筑

© 众建筑
“学习地景”围绕三大核心景观元素构建:“山”、“谷”和“滩”。位于北庭院的“山”内部容纳了学校的剧场和食堂,其阶梯状的外部形态则提供了垂直动线和休憩座位。在其底部,隆起的地形形成了一个用于表演和活动的舞台。

© 朱雨蒙

© 朱雨蒙

© 朱雨蒙

© 众建筑

北院剖透视 © 众建筑
“谷”在南庭院,尺度上专为低年级学生设计,布局逻辑与“山”相似。两侧的阶梯向下延伸至中央土丘,形成了适合非正式聚会的阶梯式座位。紧邻“谷”的是“滩”,这是一片由起伏丘陵组成的充满趣味的地形,旨在促进低年级学生的体能发展并鼓励开放式的游戏探索。

© 朱雨蒙

© 众建筑

© 朱雨蒙

© 朱雨蒙

© 朱雨蒙

© 众建筑

南院剖透视 © 众建筑
在整个校园中,大量宽敞开放的过渡空间支持着跨学科学习、团队协作和非正式交流。包括绿色屋顶、图书馆和体育设施在内的其他退台空间将不同楼层连接起来,增强了视觉和空间上的连续性。

© 朱雨蒙

© 众建筑

© 朱雨蒙

© 朱雨蒙

© 众建筑

© 朱雨蒙
图书馆剖透视 © 众建筑

© 朱雨蒙

体育馆剖透视 © 众建筑

© 众建筑
遍布校园的植被不仅有助于在深圳的热带气候中降温、过滤污染物并阻隔繁忙街道的噪音,同时也成为了学生们学习和养护的对象。在城市尺度上,这所学校被设计为北侧大型公园的南向延伸。校园自然绿化带来的降温作用也有助于缓解周边商业开发带来的城市热岛效应。

© 众建筑

© 朱雨蒙

© 众建筑

© 众建筑

© 朱雨蒙
项目图纸

总平面图 © 众建筑

负二层平面图 © 众建筑

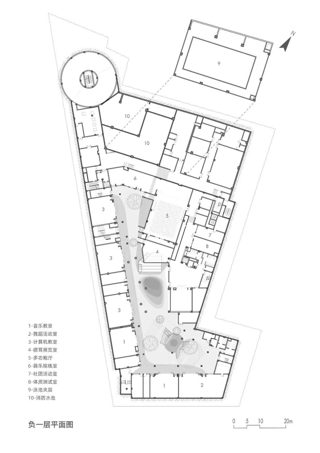
负一层平面图 © 众建筑

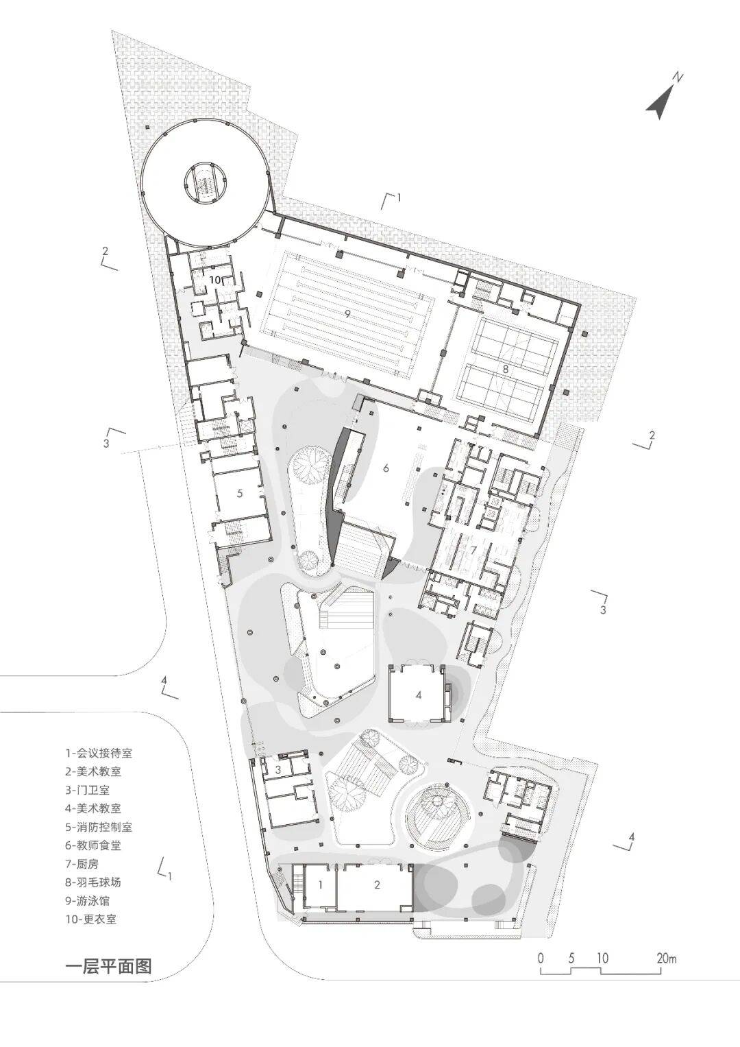
一层平面图 © 众建筑

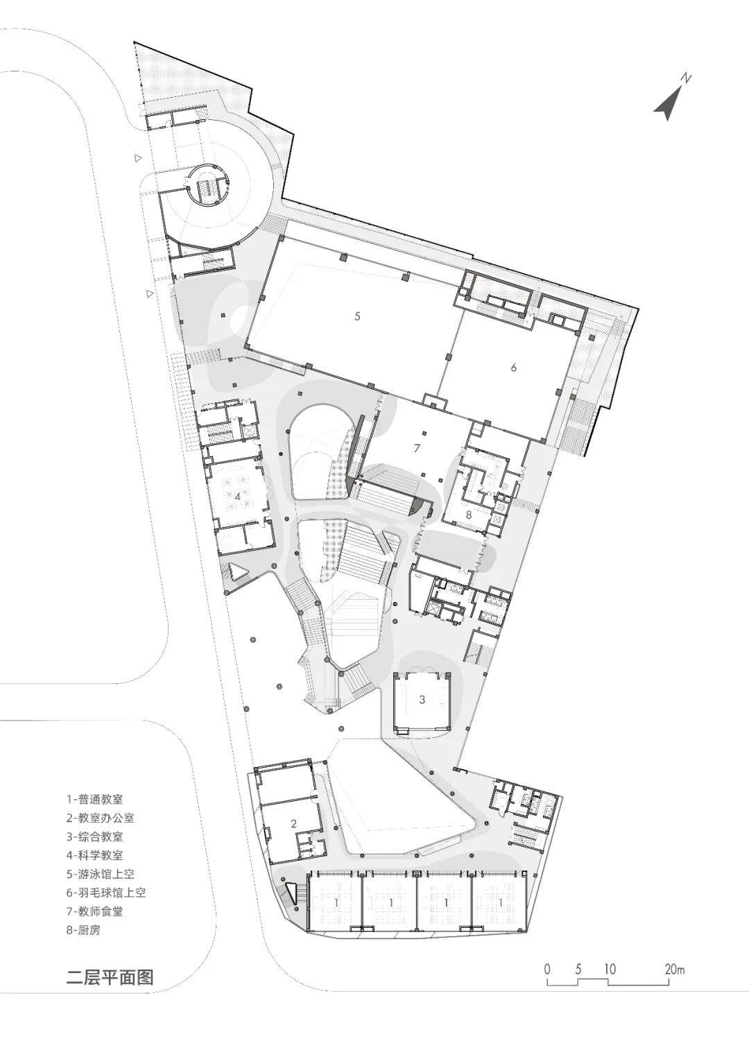
二层平面图 © 众建筑

三层平面图 © 众建筑

四层平面图 © 众建筑

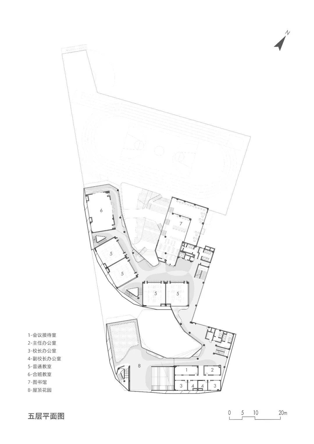
五层平面图 © 众建筑

六层平面图 © 众建筑

立面图 © 众建筑

立面图 © 众建筑

剖面图 © 众建筑

剖面图 © 众建筑
项目信息
项目名称:明德五洲小学
建筑事务所:众建筑
地点:深圳,中国
时间:2020 年-2025 年
建筑面积:20535 平方米
设计主持:何哲,James Shen,臧峰
竞赛团队:李正华,Kim Dahyun(金茶璇),许嘉玲,杨茜,王大卫,王赫
实施团队:李秋宛,张怡晨,李正华,王程琛,袁莹莹,罗沁铭,蒋颖,胡祉安,林铭锴,王谷一心,郭明冉,许卉航
联合设计院:中建科技集团有限公司
景观设计合作方:北京天兰立合景观设计有限责任公司(陈天力,韦兰岚,张鸿)
室内设计合作方:北京德真装饰设计有限公司,深圳市胜景设计顾问有限公司
照明设计合作方:同原(北京)照明设计有限公司
平面标识设计方:烁设计
北庭院山体结构设计:北京首昂建筑设计有限公司
施工总包团队:深圳泛华工程集团有限公司
客户:深圳市福田区工务署 / 富通地产 / 明德实验学校(集团)福田五洲小学
摄影师:朱雨蒙,众建筑
1条评分金币+35
xgch 金币 +35 辛苦了,感谢您无私奉献的精神! 01-13
山庄提示: 道行不够,道券不够?---☆点此充值☆
 
在线jjybzxw

UID: 551814


发帖
220875
金币
684811
道行
2006
原创
2450
奖券
3340
斑龄
42
道券
1233
获奖
0
座驾
设备
摄影级
在线时间: 48021(小时)
注册时间: 2008-10-01
最后登录: 2026-01-22
只看该作者 沙发  发表于: 01-13
明德五洲小学:深圳教育空间转型的创新典范
一、项目背景与时代呼应
在深圳从工业经济向创新驱动型经济转型的大背景下,教育重心正从“流水线”式学习模式向注重创造力与游戏化探索的模式转变。位于深圳市中心的明德五洲小学,敏锐捕捉到这一趋势,通过重新审视空间对日常教育体验的塑造,积极做出响应,为教育变革提供了空间层面的实践范例。
二、整体设计理念:立体“学习地景”
(一)打破传统空间局限
明德五洲小学被构思为立体的“学习地景”,打破了传统学校刻板排列教室和走廊的空间模式。学习不再局限于固定场所,而是发生在由多样化空间构成的流动场域中。这种多层次空间支持各种学习和互动模式,既鼓励学生自主学习,又能使校园随教育需求演变灵活调整。
(二)室内外边界模糊化
教室之外的环境被视为同等重要的学习场所。学校通过架空户外区域、设置可使用的建筑形体与部件以及敞开教室等方式,模糊了室内与室外的边界。户外学习让学生摆脱课桌束缚,获得动手实验和与大自然直接互动的机会,丰富了学习体验。
三、核心景观元素构建
(一)“山”:功能与形态的融合
位于北庭院的“山”是校园核心景观元素之一。其内部容纳学校剧场和食堂,满足校园功能需求;阶梯状外部形态提供垂直动线和休憩座位,底部隆起地形形成表演和活动舞台,实现了功能与形态的有机结合,为学生提供了多样化的活动空间。
(二)“谷”:专为低年级学生设计
“谷”在南庭院,尺度专为低年级学生打造,布局逻辑与“山”相似。两侧阶梯向下延伸至中央土丘,形成适合非正式聚会的阶梯式座位,符合低年级学生的行为特点和社交需求,营造出温馨、友好的交流环境。
(三)“滩”:促进体能与探索
“滩”是一片由起伏丘陵组成的趣味地形,紧邻“谷”。它旨在促进低年级学生的体能发展,鼓励开放式游戏探索。学生在“滩”上可以自由奔跑、攀爬,激发创造力和想象力,培养身体协调性和团队合作精神。
四、过渡空间与退台空间设计
(一)过渡空间支持多元活动
校园中大量宽敞开放的过渡空间支持跨学科学习、团队协作和非正式交流。这些空间打破了学科界限,为学生提供了自由交流和合作的机会,促进知识的融合与创新思维的产生。
(二)退台空间增强连续性
包括绿色屋顶、图书馆和体育设施在内的退台空间将不同楼层连接起来,增强了视觉和空间上的连续性。学生在校园中活动时,能够感受到空间的流畅性和整体性,提升对校园环境的认同感和归属感。
五、植被与城市生态贡献
(一)校园内部生态效益
遍布校园的植被在深圳热带气候中发挥重要作用,有助于降温、过滤污染物并阻隔繁忙街道的噪音。同时,植被成为学生学习和养护的对象,培养他们的环保意识和责任感。
(二)城市尺度生态调节
在城市尺度上,明德五洲小学被设计为北侧大型公园的南向延伸。校园自然绿化带来的降温作用有助于缓解周边商业开发带来的城市热岛效应,为改善城市生态环境做出贡献。
六、项目信息汇总
(一)基本信息
项目名称:明德五洲小学
建筑事务所:众建筑
地点:深圳,中国
时间:2020年 - 2025年
建筑面积:20535平方米
(二)设计团队
设计主持:何哲,James Shen,臧峰
竞赛团队:李正华,Kim Dahyun(金茶璇),许嘉玲,杨茜,王大卫,王赫
实施团队:李秋宛,张怡晨,李正华,王程琛,袁莹莹,罗沁铭,蒋颖,胡祉安,林铭锴,王谷一心,郭明冉,许卉航
(三)合作团队
联合设计院:中建科技集团有限公司
景观设计合作方:北京天兰立合景观设计有限责任公司(陈天力,韦兰岚,张鸿)
室内设计合作方:北京德真装饰设计有限公司,深圳市胜景设计顾问有限公司
照明设计合作方:同原(北京)照明设计有限公司
平面标识设计方:烁设计
北庭院山体结构设计:北京首昂建筑设计有限公司
施工总包团队:深圳泛华工程集团有限公司
(四)客户与摄影师
客户:深圳市福田区工务署 / 富通地产 / 明德实验学校(集团)福田五洲小学
摄影师:朱雨蒙,众建筑

明德五洲小学以其创新的设计理念和实践,为深圳教育空间的转型树立了典范,不仅为学生提供了优质的学习环境,也为城市生态环境的改善做出了积极贡献。
1条评分金币+6
xgch 金币 +6 回复认真,加分鼓励 01-13
如何不发帖就快速得到金币道行
 
在线姜谷粉丝

UID: 1569053

精华: 2
级别: 玉清道君

发帖
168694
金币
503226
道行
20030
原创
768
奖券
359
斑龄
0
道券
30
获奖
0
座驾
设备
摄影级
在线时间: 20821(小时)
注册时间: 2012-06-21
最后登录: 2026-01-22
只看该作者 板凳  发表于: 01-13
明德五洲小学通过革新性的空间设计与生态实践,成为深圳教育转型的标杆。其创新价值主要体现在以下方面:

一、空间设计:重构学习场景
立体化学习景观
突破传统校园布局,打造“北院山体-中央山谷-南院沙丘”的立体空间结构。能量谷、闲暇丘等非正式学习区与恒温泳馆、多功能厅等核心设施联动,形成可探索、可游戏的沉浸式环境,激发学生创造力与协作力。
边界消融的灵动空间
通过开放式走廊、可移动家具及三层挑空图书馆,实现室内外场景自由转换;负一层“课程市集”展示跨学科成果,使学习突破教室限制。
二、生态融合:绿色赋能城市
垂直生态体系
屋面与立面全覆盖绿植,显著降低热岛效应,同时作为自然教育载体。校园成为北侧城市公园的生态延伸,提升区域生物多样性。
海绵城市技术应用
透水铺装与雨水回收系统兼顾节水与微气候调节,在高密度城区实现生态效益最大化。
三、数字基建:未来教育枢纽
AI+场景化教学
虚拟学校平台与物联网教室支撑个性化学习,如AI运动屏实时分析体能数据,游戏化任务提升锻炼积极性。
技术驱动课程革命
创新中心整合数字资源库,开发智能制造、生态探索等跨学科课程;“数智双师”模式深化PBL项目实践。
四、人文价值:开放教育生态
社区资源联动
图书馆开辟家长课堂,游泳馆错峰向社会开放,推动校园空间成为社区文化节点。
体制创新示范
政企协同管理模式赋予课程自主权,全员聘任制吸引跨界师资,为公办教育改革提供可复制的“明德样本”。
明德五洲小学以“空间即教育”为核心理念,将有限的用地转化为无限的学习可能,其融合生态智慧与数字基因的实践,为高密度城市的教育空间革新开辟了新路径。
1条评分金币+6
xgch 金币 +6 回复认真,加分鼓励 01-13
如何不发帖就快速得到金币道行
 
我有我可以
快速回复
限120 字节
认真回复加分,灌水扣分~
 
上一个 下一个