切换到宽版
  • 198阅读
  • 1回复

[奇观]无锡和风实验小学/ 米丈建筑[41P] [复制链接]

上一主题 下一主题
在线jjybzxw

UID: 551814

 

发帖
220905
金币
684919
道行
2006
原创
2450
奖券
3340
斑龄
42
道券
1233
获奖
0
座驾
设备
摄影级
在线时间: 48026(小时)
注册时间: 2008-10-01
最后登录: 2026-01-23
只看楼主 倒序阅读 使用道具 楼主  发表于: 2025-12-28
— 本帖被 huozm32831 执行加亮操作(2025-12-28) —


© 山间影像
学校占地面积约3.7万平方米,设计规模为60个班,可以容纳2700名学生。用地规则,周边是新建城区,设计的开始就是寻找一个合适的叙事语境,为建筑赋予深层次的意义。这种意义与建筑师的个人经验相关,也与建筑师对于城市、地域、环境的认知相关。



▲ 总体鸟瞰© 山间影像
“层峦叠翠”之法是传统中国画景色与人物描写技法之一。在相同空间或时间中,相继展现多个人物或事件,写意寻趣,在方寸间展现欣欣然的生机,也是中国文人画的表现手法精髓。以绘画的叙事性和技法,来介入建筑的表达,目的是让新建建筑,藉由空间的变化,展现更多的文学属性。当建筑具有了和文学一样的抽象表达的时候,建筑的意义就会丰富起来,与不同人的情绪和感受,加以连接,成为一个可以交流和对话的场所,在人与建筑之间,也在人与人之间。


▲ 体块概念图© MINAX

▲ 爆炸分析图© MINAX

▲ 局部鸟瞰© 山间影像



▲ 从运动场看向建筑群© 山间影像
层峦
“层”本质上是一个时间的概念。无锡位于太湖盆地,是长江下游冲积平原的典型地貌,在自然地理上,具有强烈的层叠属性。而在文化上的累积,也是无锡最重要的特点之一。层和时间的关系,是在时间的进程当中逐渐完成对具象物质和抽象精神的累积,从而形成当下的面貌,这与教育的本质是一样的。我们的建筑型体采用层层叠加的抽象的形式,用来呼应无锡的自然条件和文化特质。在教育的演进过程当中,每一个先验的步骤都是构成日后结果的途径。层序分明的态势会在时间的过程当中逐渐呈现,通过突变、重组和选择,产生于几乎无限的多样性。

▲ 层叠的建筑体© 山间影像
建筑体一如沉积岩形成的结构特征,重叠的楼板以在重叠部分之间产生差异的方式将不同的大小和范围合并在一起。在某些部分应用了类似的重叠策略(例如:以 900 的模数相互搭建与交融),不同的空间汇集在一起,彼此之间建立了体积关系。



▲层叠建筑体创造出的虚实空间© 山间影像
这种基于严谨秩序下面的丰富变化,是解决高密度校园建筑性格塑造的重要途径。在高效率功能需求的先决条件下,利用有限的空间实现最丰富的变化,才能够在功能性和精神性之间搭建一座相融的路径。


▲错动的形体诞生出丰富的活动空间© 山间影像
以一条放大的公共带,区分动静,定义属性。以统一的生成逻辑,简洁的构成手法,创建一个相生的体积,交搭而成大小相间,前后相掩,有起伏,有隐现,参伍错综,主宾顾盼的活跃空间。


▲ 建筑形体在街道上形成丰富的界面© 山间影像

▲ 变化形体自然形成的建筑主入口灰空间© 山间影像
叠翠
在我们的理想中,建筑不应该是隔断人与自然的壁垒,而是人与自然关系的交织。层板的错动形成了很多明亮和灰色的空间,在这些空间中,将自然的元素引入,如同层层叠叠的山脉中那时隐时现的绿色。多层次的自然元素,不仅是植物、风和阳光,被引入坚硬的建筑体当中,此时的建筑体不再成为一种封闭的壁垒,而是成为一个舒适的交流空间。

▲ 内外统一的形体逻辑创造出庭院的丰富界面© 山间影像


▲ 由庭院看层叠的建筑© 山间影像
未来的社会竞争不像现在的单纬度和浅层次,而更加强调人与人,人与机器的多维度的竞争,其中涉及到最重要的要求就是彼此的协作和团结。因此,教育空间中除了掌握基础类的知识体系之外,培养协作共赢,多维交流的基本素质,是教育的重要的方向,我们的建筑也必须为此服务。

▲ 形体的丰富带来空间的多样© 山间影像

▲ 内在逻辑带来的外在表现© 山间影像
如同华琳在《南宗抉秘》中所言:“凡山石轮廓,皆笔笔相搭而生,不可层层罗叠而上,使之状似垒蚌壳,排鱼鳞。以画理论,止是单片,不成深山。 以形状论,亦板滞可厌。纵块数甚多,总要连络有情,毋令块块可以单取出也,方是深山,方有龙脉。”

▲ 层峦叠翠© 山间影像
意趣
中国的文化艺术讲究以抽象的简单元素来反映多层次的意义,在这个建筑当中,我们运用了最直白和简洁的手法,使之建造容易,将简单空间以多重组合来呈现丰富性,达到“写意寻趣”的目的。建筑是时间和记忆的场所,对于其中成长的个体而言,最重要的是培养其感知和理解不同抽象元素的能力,简洁的形体,丰富的构成,提供了体验这个世界不同的方法和路径,这是我们设计这个有别于传统的学校重要的着手点。意义和趣味深藏于建筑形体和空间的组合变化中,不在场的抽象交流形成了教育过程当中重要的一个体验过程。

▲ 由下沉庭院接送系统进入建筑体© 山间影像

▲ 公共活动带中的贯通空间© 山间影像

▲ 基于生成逻辑的丰富性© 山间影像
盎然
盎然是“盈溢和充满”的意思。在生命的成长阶段,我们需要塑造一种积极向上的环境气氛,建筑希望将这种充满正量的概念植入其中。采用浅色的外墙和木色的装饰,营造更加温暖的氛围,空间的流动性和处处的来自于阳光和风的自然惊喜,蕴藏在不同的行进和发现当中,这是一种来自于生命的乐趣。课间的10分钟,在教室周边都能找到精心设置的活动区域,屋顶一反乏味的消极,形成了接触自然的良好平台。操场和建筑也不是单纯并置的关系,而是结合为一体。不同方向光线和影子的引入,将建筑变得层次丰富。任何一个角度都能够看到不经意的自然和人工的秀丽。在越来越艰苦的时代竞争当中,我们希望这个新的校园建筑能成为一个成长过程中的精神堡垒。

▲ 悬浮于建筑顶部的活动空间© 山间影像

▲ 建筑中设置大量不同尺度的学生活动空间© 山间影像

▲ 室内运动场与自然采光系统© 山间影像

▲ 夜景鸟瞰© 山间影像
项目图纸

▲ 总平面图© MINAX

▲ 地下二层平面图© MINAX

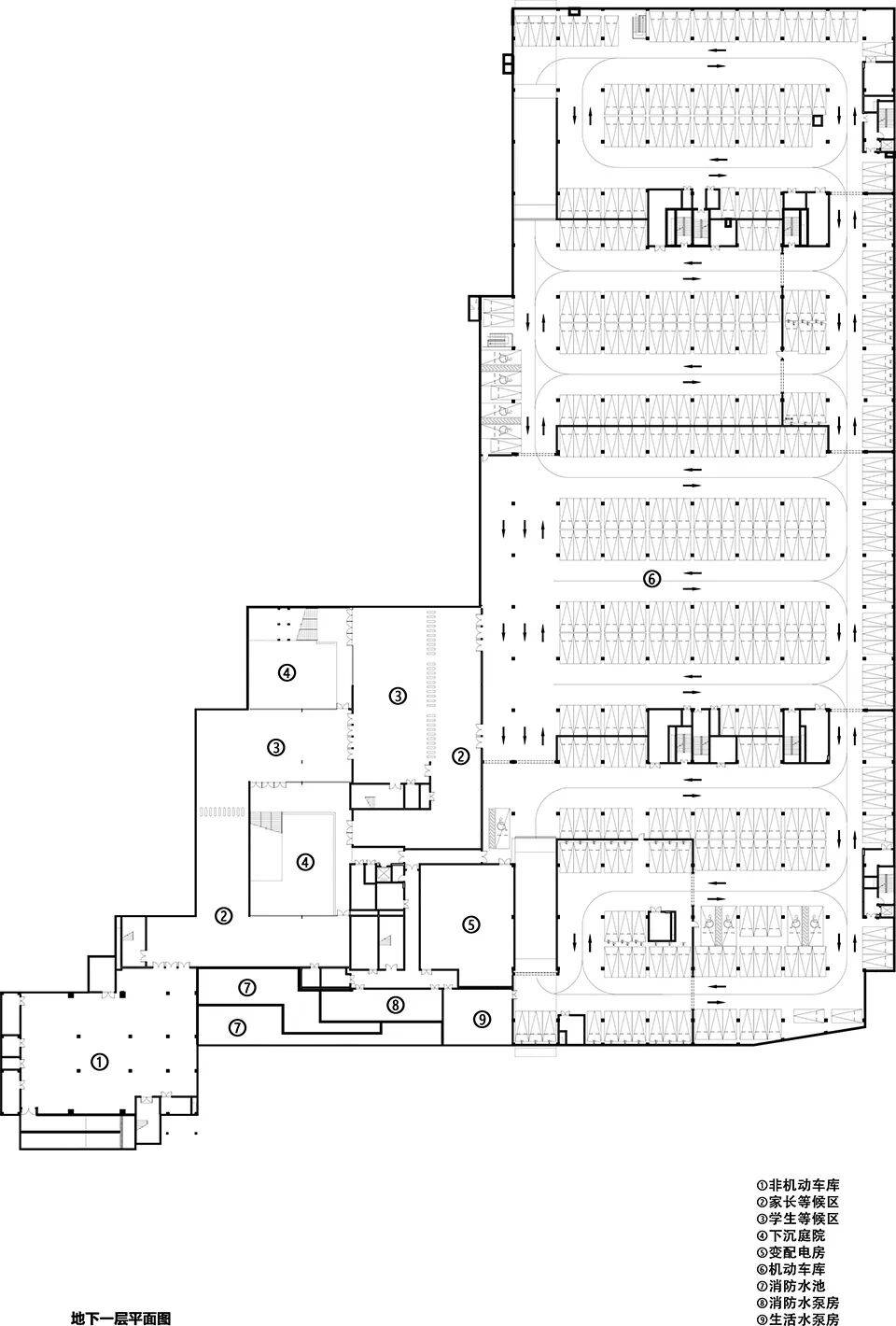
▲ 地下一层平面图© MINAX

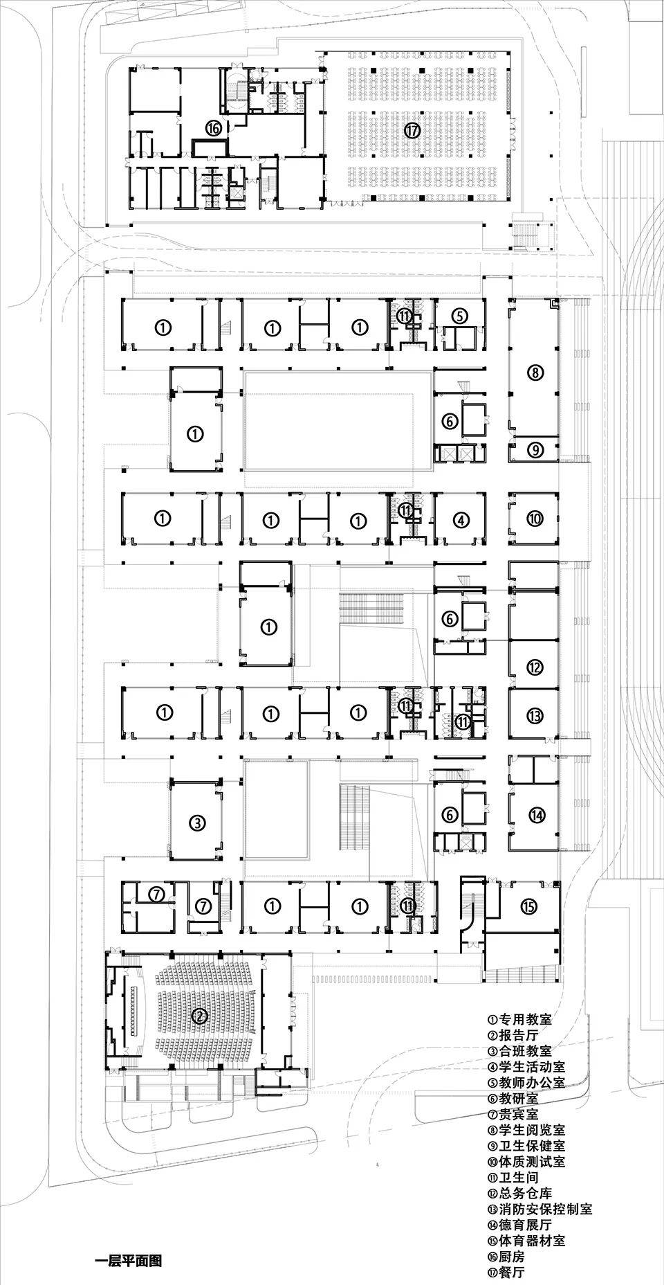
▲ 一层平面图© MINAX

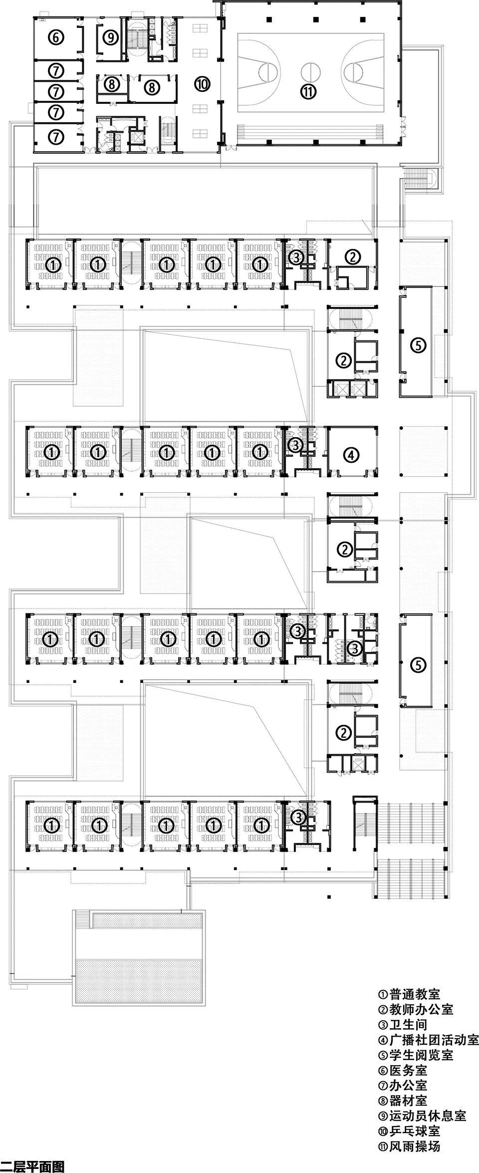
▲ 二层平面图© MINAX

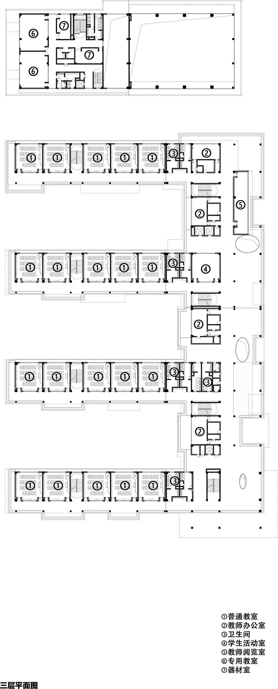
▲ 三层平面图© MINAX

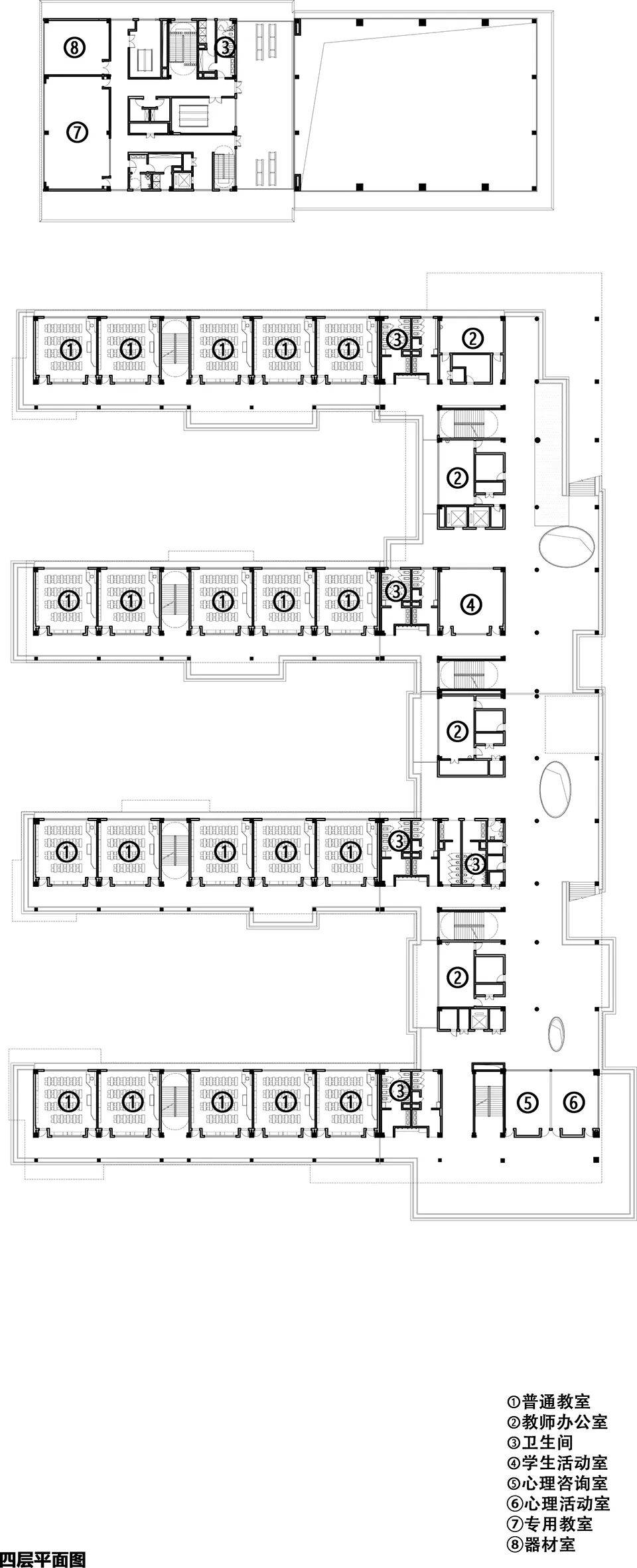
▲ 四层平面图© MINAX

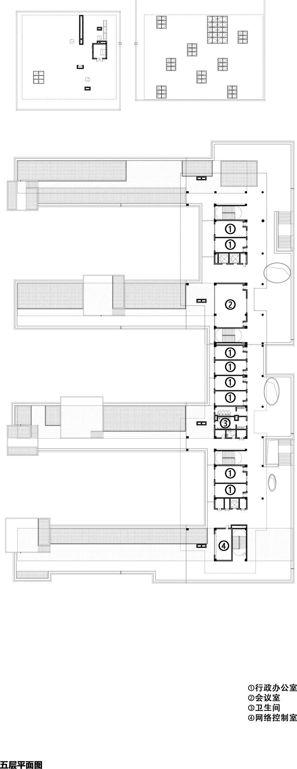
▲ 五层平面图© MINAX




▲ 剖透视图© MINAX
建筑设计&室内设计&景观设计: 米丈建筑
建筑面积: 59481m²
项目年份: 2020-2025
摄影师: 山间影像
主持建筑师:卢志刚
设计团队:黄聪毅、刘志睿、许展航、陈梓薇、赵雪、张潇爽、梁丁鹏、孙磊、安晓蕊、杨鹄旭、齐航、张学斌、周俊池、陈剑(实习)、郝彤(实习)
施工图深化设计: 江苏博森建筑设计有限公司
业主: 江苏无锡经济开发区发展中心
撰文:卢志刚
城市:无锡
国家:中国
地址:无锡市经开区和风路189号
1条评分金币+20
huozm32831 金币 +20 - 2025-12-28
山庄提示: 道行不够,道券不够?---☆点此充值☆
 
在线jjybzxw

UID: 551814


发帖
220905
金币
684919
道行
2006
原创
2450
奖券
3340
斑龄
42
道券
1233
获奖
0
座驾
设备
摄影级
在线时间: 48026(小时)
注册时间: 2008-10-01
最后登录: 2026-01-23
只看该作者 沙发  发表于: 2025-12-28
这段描述提供了一个学校建筑项目的详细信息,包括设计理念、建筑特色、空间布局以及项目的具体数据。以下是对该项目的总结:

1. 项目背景:
学校占地面积约为3.7万平方米,设计规模为60个班级,可容纳2700名学生。
项目位于无锡,一个具有强烈层叠属性的城市,无论是自然地理还是文化累积。

2. 设计理念:
设计灵感来源于传统中国画的“层峦叠翠”技法,通过空间变化展现文学属性,使建筑具有抽象表达能力,与人的情绪和感受相连。
建筑型体采用层层叠加的形式,呼应无锡的自然条件和文化特质,体现教育演进过程中的层序分明和多样性。

3. 建筑特色:
建筑体如同沉积岩结构,通过重叠楼板和模数搭建,形成不同的空间关系。
利用严谨的秩序创造丰富的变化,解决高密度校园建筑的性格塑造问题。
通过错动的形体创造出丰富的活动空间,区分动静区域,定义属性。

4. 空间布局:
建筑不作为隔断人与自然的壁垒,而是交织人与自然的关系,引入自然元素如植物、风和阳光。
建筑形体和空间的组合变化中隐藏意义和趣味,形成教育过程中的重要体验。
建筑采用浅色外墙和木色装饰,营造温暖氛围,空间流动性和自然惊喜蕴藏在不同的行进和发现中。

5. 项目数据:
建筑面积:59481平方米。
项目年份:2020-2025。
摄影师:山间影像。
主持建筑师:卢志刚。
设计团队包括黄聪毅、刘志睿等。
施工图深化设计:江苏博森建筑设计有限公司。
业主:江苏无锡经济开发区发展中心。
地址:无锡市经开区和风路189号。

这个项目通过其独特的设计理念和建筑特色,旨在创造一个能够促进学生多维交流、协作共赢,并与自然和谐共存的教育环境。
1条评分金币+6
huozm32831 金币 +6 - 2025-12-28
如何不发帖就快速得到金币道行
 
快速回复
限120 字节
认真回复加分,灌水扣分~
 
上一个 下一个