切换到宽版
  • 200阅读
  • 1回复

[奇观]济南大辛庄遗址博物馆 / 同圆设计集团股份有限公司[36P] [复制链接]

上一主题 下一主题
在线jjybzxw

UID: 551814

 

发帖
220905
金币
684919
道行
2006
原创
2450
奖券
3340
斑龄
42
道券
1233
获奖
0
座驾
设备
摄影级
在线时间: 48023(小时)
注册时间: 2008-10-01
最后登录: 2026-01-23
只看楼主 倒序阅读 使用道具 楼主  发表于: 2025-12-26
— 本帖被 huozm32831 执行加亮操作(2025-12-27) —


© 时差影像
项目背景
大辛庄遗址位于山东省济南市历城区王舍人街道办事处大辛庄村东南,是目前山东省已知面积最大的一处以商文化为主体堆积的古聚落文化遗址,是商王朝经略东方的统治中心,为我国东方地区规格最高的一处遗址,在商代 考古与历史研究中具有极其重要的价值。大辛庄考古遗址公园是国家级遗址公园项目,项目占地677亩,其中大辛庄遗址博物馆总建筑面积约2.2万平方米,是公园入口的核心建筑,其内部集遗址保护、学术研究、文化展示与公众教育等功能于一体,将成为解码商代东方文明的重要窗口。

▲项目鸟瞰© 时差影像

▲项目概览© 时差影像
从历史原型,到现代转译
大辛庄遗址的核心价值体现在其作为商代东方中心的历史地位,其中重要的考古发现——F61大型宫殿基址,以及甲骨卜辞、青铜重器等出土文物,共同构成了设计的文化基石。其中F61大型宫殿基址的地位极其重要,其属殷墟二期的可能性极大,与大辛庄甲骨卜辞同属殷墟早期。设计将其平面比例与回廊形态抽象为基本模数,通过变换与重组,形成了博物馆三大功能体量——展厅、研究中心与游客中心。

▲原型提取© 同圆设计集团

▲博物馆三大功能体量© 时差影像
通过抽象商代宫殿的“茅茨土阶”构造——下层夯土筑基、中层柱廊支撑、上层茅草覆盖,将其提取为建筑立面的三段式构图,结合使用层高需求形成三个体量高度比例大致相同的关系,并收分叠加并错落延伸形成建筑的基本形态。底层以厚重的台基意象呼应“筑台成殿”的历史记忆;中层通过竖向构件与玻璃幕墙的组合,模拟柱廊的虚实关系;顶层则以出檐深远的屋面处理,隐喻茅草的轻盈感。

▲形态生产© 同圆设计集团

▲立面的意象© 时差影像
空间叙事脉络与场所营造
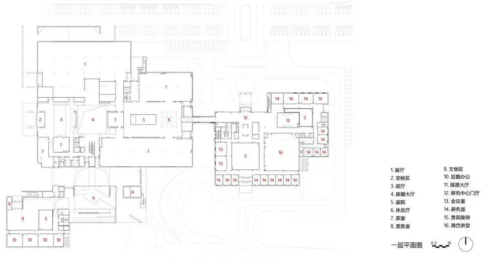
建筑布局在轴线上串联了各个重要的空间节点,从“庭”—室外广场、“门”—主入口区域、“厅”—博物馆前厅、到“堂”—族徽大厅、“廊”—庭院回廊、“院”—室外庭院,设计将这些象征商代城邦文化的礼制空间与博物馆建筑观展流线上起承转合的各个节点完美的嵌套在一起,以空间叙事的手法给予观展者互动体验。

▲线索一© 同圆设计集团

▲空间分析© 同圆设计集团

▲户外广场© 时差影像

▲主入口© 时差影像

▲博物馆前厅© 时差影像


▲族徽大厅© 时差影像


▲庭院回廊© 时差影像
古今时空对话
F61大型宫殿建筑基址位于遗址公园的东南部,方向为北偏东25°,建筑屋顶形态进行了旋转,旋转角度朝向东南的遗址方向,与商朝城址及主要建筑的朝向北偏东的走向一致。建筑在二层与一层扶梯衔接的空间节点上设计了一处互动平台,从互动平台上可以俯瞰整个探源大厅,同时其旋转角度朝向东南遗址方向并一直延伸至室外,形成了一个古今时空对话的窗口。

▲线索二© 同圆设计集团

▲动线分析© 同圆设计集团


▲室内坡道© 时差影像

▲互动平台© 时差影像

▲公共走廊© 时差影像
建筑外部动线
博物馆设计之初就从各个维度考虑了公众开放性——游客既可从博物馆首层架空区域穿过到达遗址公园,也可通过室外楼梯到达建筑二层及三层的室外平台,这些空间既可作为室外展陈的延伸空间,也可作为周边居民的观景休憩场地,实现博物馆兼容城市客厅的目标。

▲线索三© 同圆设计集团

▲公共开放平台© 时差影像


▲通向遗址公园的室外通道© 时差影像
绿色建筑做法与可持续策略
功能叠合与运营增效
项目超越单一功能,基于“遗址保护+公众服务+学术研究”的复合需求,通过动线串联与场景适配,实现空间深度复用。如核心的族徽大厅兼具活动举办功能,探源平台复合了沙盘展示、休憩与导览,最大化提升空间使用效率与经济效益,减少闲置浪费。

▲展厅前厅空间© 时差影像
适宜体量与被动式优先
秉承“遗址保护优先、生态干扰最小”原则,摒弃传统“大单体”模式,将建筑分解为展厅、研究中心、游客中心三个组团,以庭院和连廊形成“分散式集群”,消隐于环境,从源头降低能耗。建筑主体高度控制在18米内,减少热损失;将高耗能的藏品库房等置于地下,利用设备用房遮盖族徽大厅顶部,均是被动式节能的有效举措。

▲风速分析© 同圆设计集团

▲被动式节能© 孟辰
虚实有度与自然整合设计
将采光、通风、遮阳等被动式节能措施与文化叙事深度融合。采光:通过庭院和中庭组织,使公共空间自然采光覆盖率超85%,减少人工照明依赖,光影变化本身也增强了展览氛围。 通风:组团布局自然形成气流走廊,辅以庭院枢纽,使自然通风覆盖率超70,夏季引风入室,冬季有效御寒。

▲自然采光分析© 同圆设计集团

▲充足的室内采光© 时差影像
遮阳:立面采用以东夷土坯砖为灵感的镂空遮阳构件;屋顶通过抽象青铜器形态形成挑檐,既满足遮阳功能,又强化了文化表达,并拓展了室外活动空间。

▲立面细部© 孟辰
结语
大辛庄遗址博物馆方案是一次从历史深处走向当代语境的建筑实践。它通过对商文化元素的抽象转译,在形态与空间上实现了与历史文脉的对话,并通过布局优化、材料选择与技术整合,达成了与自然环境的和谐共生。未来,它不仅是展示商夷文明的核心窗口,更将作为一座具有示范意义的绿色文化建筑,为同类项目提供宝贵借鉴。
项目图纸

▲总平面图© 同圆设计集团

▲首层平面图© 同圆设计集团

▲二层平面图© 同圆设计集团

▲三层平面图© 同圆设计集团



▲剖面图© 同圆设计集团



▲细部节点图© 同圆设计集团
项目名称:大辛庄遗址博物馆
业主:济南发展国有工业资产经营有限公司
建设地点:济南市历城区
建筑设计:同圆设计集团股份有限公司
建筑面积:22673㎡
设计时间:2022
建成时间:2025
结构形式:钢结构建筑
层数:3层
项目总负责:郭立强
方案团队:郭立强、司鸿斌、徐靖东、张国萌、边文淦、朱晓晨
施工图设计团队:
建筑:周珊珊、张国萌、郝文娟、田玉豪、王宏哲、王海亮
结构:王金祥、李冠群、訾晓忠
给排水:叶雪松、李元鹏、王敏香、周艳
暖通:陈军华、张琳、魏兆鹏、韩晓东
电气:王相涛、孙敏、周鑫、张红丽
智能化:李朋、钟滨、张培园
人防:安朔、谷晶红、李俊君、刘凤英
精装设计团队:边文淦、张广海、李明欣
幕墙顾问:清科锐创工程咨询(北京)有限公司
建筑摄影:时差摄影、孟辰
图纸版权:同圆设计集团股份有限公司
1条评分金币+20
huozm32831 金币 +20 - 2025-12-27
山庄提示: 道行不够,道券不够?---☆点此充值☆
 
在线jjybzxw

UID: 551814


发帖
220905
金币
684919
道行
2006
原创
2450
奖券
3340
斑龄
42
道券
1233
获奖
0
座驾
设备
摄影级
在线时间: 48023(小时)
注册时间: 2008-10-01
最后登录: 2026-01-23
只看该作者 沙发  发表于: 2025-12-26
大辛庄遗址博物馆:历史文脉与现代绿色的交融典范
在山东省济南市历城区,一座承载着深厚商代文化底蕴的建筑——大辛庄遗址博物馆拔地而起。作为国家级遗址公园大辛庄考古遗址公园入口的核心建筑,它不仅肩负着遗址保护、学术研究、文化展示与公众教育等重要功能,更以其独特的设计理念和卓越的建筑实践,成为解码商代东方文明的关键窗口以及绿色文化建筑的示范标杆。
溯源历史:文化基石奠定设计灵魂
大辛庄遗址作为山东省已知面积最大、以商文化为主体堆积的古聚落文化遗址,是商王朝经略东方的统治中心,在我国东方地区规格极高,在商代 考古与历史研究中占据举足轻重的地位。其中,F61大型宫殿基址以及甲骨卜辞、青铜重器等出土文物,构成了大辛庄遗址博物馆设计的文化基石。F61大型宫殿基址极有可能属殷墟二期,与大辛庄甲骨卜辞同属殷墟早期,其重要性不言而喻。

设计团队深入挖掘这些历史元素,将F61大型宫殿基址的平面比例与回廊形态抽象为基本模数,通过巧妙的变换与重组,形成了博物馆的三大功能体量——展厅、研究中心与游客中心。同时,对商代宫殿“茅茨土阶”的构造进行抽象提取,下层夯土筑基、中层柱廊支撑、上层茅草覆盖的构造,被转化为建筑立面的三段式构图。结合使用层高需求,形成三个体量高度比例大致相同的关系,并收分叠加、错落延伸,塑造出建筑的基本形态。底层厚重的台基意象呼应“筑台成殿”的历史记忆;中层竖向构件与玻璃幕墙的组合,模拟出柱廊的虚实关系;顶层出檐深远的屋面处理,隐喻茅草的轻盈感,使建筑从外观上便与商代文化紧密相连。
空间叙事:礼制文化与观展体验的完美融合
建筑布局在轴线上精心串联起各个重要的空间节点,从室外的“庭”——广场,到主入口区域的“门”,再到博物馆前厅的“厅”、族徽大厅的“堂”、庭院回廊的“廊”以及室外庭院的“院”,这些象征商代城邦文化的礼制空间,与博物馆建筑观展流线上起承转合的各个节点完美嵌套。通过这种空间叙事的手法,观展者仿佛穿越时空,亲身感受商代文化的魅力,获得沉浸式的互动体验。

在户外广场,开阔的空间让人感受到历史的宏大与庄严;主入口作为进入博物馆的第一站,以其独特的设计吸引着人们的目光;博物馆前厅则是一个过渡空间,引导人们逐渐进入历史的世界;族徽大厅作为核心空间,承载着商代文化的重要象征,给人以强烈的视觉冲击和文化震撼;庭院回廊则营造出一种静谧、悠远的氛围,让人在漫步中细细品味历史;室外庭院则为人们提供了一个放松身心、亲近自然的空间,使整个观展过程张弛有度。
时空对话:古今交融的独特视角
F61大型宫殿建筑基址位于遗址公园的东南部,方向为北偏东25°。为了实现古今时空对话,博物馆建筑屋顶形态进行了旋转,旋转角度朝向东南的遗址方向,与商朝城址及主要建筑的朝向北偏东的走向一致。在建筑二层与一层扶梯衔接的空间节点上,设计了一处互动平台。从互动平台上,人们可以俯瞰整个探源大厅,同时其旋转角度朝向东南遗址方向并一直延伸至室外,形成了一个古今时空对话的窗口。在这里,人们可以跨越时空的界限,感受历史的变迁与延续,深刻体会到商代文化与现代文明的碰撞与融合。
开放包容:博物馆与城市的亲密互动
博物馆在设计之初就充分考虑了公众开放性,致力于实现博物馆与城市客厅的兼容。游客既可以从博物馆首层架空区域穿过,便捷地到达遗址公园,感受历史与自然的交融;也可以通过室外楼梯到达建筑二层及三层的室外平台。这些空间不仅可作为室外展陈的延伸空间,丰富展览内容,还可作为周边居民的观景休憩场地,为人们提供了一个亲近文化、放松身心的场所。这种开放的设计理念,使博物馆不再是孤立的文化建筑,而是与城市生活紧密相连,成为城市文化的重要组成部分。
绿色可持续:生态理念贯穿建筑始终
功能叠合与运营增效
项目超越了单一功能,基于“遗址保护 + 公众服务 + 学术研究”的复合需求,通过动线串联与场景适配,实现了空间的深度复用。例如,核心的族徽大厅兼具活动举办功能,探源平台复合了沙盘展示、休憩与导览功能。这种多功能的设计最大化地提升了空间使用效率与经济效益,减少了空间闲置浪费,体现了绿色建筑的经济性原则。
适宜体量与被动式优先
秉承“遗址保护优先、生态干扰最小”的原则,摒弃了传统“大单体”模式,将建筑分解为展厅、研究中心、游客中心三个组团,以庭院和连廊形成“分散式集群”,使建筑消隐于环境之中,从源头上降低了能耗。建筑主体高度控制在18米内,减少了热损失;将高耗能的藏品库房等置于地下,利用设备用房遮盖族徽大厅顶部,这些被动式节能举措有效降低了建筑的能源消耗。
虚实有度与自然整合设计
将采光、通风、遮阳等被动式节能措施与文化叙事深度融合。在采光方面,通过庭院和中庭组织,使公共空间自然采光覆盖率超过85%,大大减少了对人工照明的依赖,同时光影的变化本身也增强了展览氛围。在通风方面,组团布局自然形成气流走廊,辅以庭院枢纽,使自然通风覆盖率超过70%,夏季能够引风入室,带来凉爽;冬季则能有效御寒,保持室内温暖。在遮阳方面,立面采用以东夷土坯砖为灵感的镂空遮阳构件;屋顶通过抽象青铜器形态形成挑檐,既满足了遮阳功能,又强化了文化表达,并拓展了室外活动空间。
结语
大辛庄遗址博物馆方案是一次极具创新性和示范性的建筑实践。它通过对商文化元素的深入挖掘和抽象转译,在形态与空间上实现了与历史文脉的精彩对话;同时,通过精心的布局优化、材料选择与技术整合,达成了与自然环境的和谐共生。未来,它不仅将成为展示商夷文明的核心窗口,让更多人了解和感受商代文化的魅力,更将作为一座具有示范意义的绿色文化建筑,为同类项目提供宝贵的借鉴和启示,推动绿色建筑理念在文化建筑领域的广泛应用和发展。

1条评分金币+6
huozm32831 金币 +6 - 2025-12-27
如何不发帖就快速得到金币道行
 
快速回复
限120 字节
认真回复加分,灌水扣分~
 
上一个 下一个