切换到宽版
  • 215阅读
  • 1回复

[奇观]Klättermusen(攀山鼠)深圳旗舰店 / odd设计事务所[53P] [复制链接]

上一主题 下一主题
在线jjybzxw

UID: 551814

 

发帖
220905
金币
684919
道行
2006
原创
2450
奖券
3340
斑龄
42
道券
1233
获奖
0
座驾
设备
摄影级
在线时间: 48023(小时)
注册时间: 2008-10-01
最后登录: 2026-01-23
只看楼主 倒序阅读 使用道具 楼主  发表于: 2025-12-26
— 本帖被 huozm32831 执行加亮操作(2025-12-27) —


▲攀山鼠深圳旗舰店©锐景摄影
当城市记忆被唤醒,在商业空间中获得新的延续…
Klättermusen(攀山鼠)是1975年诞生于瑞典的户外运动品牌,以“极致性能”、“自然环保”和“山系美学”为核心理念,产品灵活应用于各种户外场景。
设计没有掩盖岁月痕迹,而是凸显自然与人文的历史进程。通过模糊零售、空间、及文化间的界线,在具有时代感的材料和现代元素之间展开丰富对话,打造具有实验性的城市限定旗舰店。
『 新零售的空间“渗透” 』
旗舰店于深圳核心商圈启幕,位于商区人流交汇处。为了体现“城市渗透性”理念,我们搭建外摆区域,模糊室内与室外的空间边界,建立门店与城市和人的紧密联结。

▲门店外立面©锐景摄影
我们利用回收木材错落组合成不同高度的座椅,结合景观绿植,将外摆区域营造成林中露营的户外场景。

▲外摆区域©锐景摄影

▲外摆区域模型©odd
外摆区为商区行人提供可稍作停歇的休憩场所,是门店和品牌体验的室外延伸;同时也将户外行人的注意力引向室内空间,成为橱窗展示的一部分。

▲门店与城市接壤©锐景摄影





▲外摆区局部细节 ©odd
『 核心展示中岛 』
核心展示区由两个独立的道具单元组合而成,包含衣架、展示台、休息座椅等元素,通过不同使用模式创造多样场景。核心展示中岛位于空间中轴线上,贯穿橱窗展示、活动区及展示区。


▲核心展示中岛©锐景摄影

▲空间轴线©odd

▲中岛构成元素©锐景摄影

▲中岛特色展台©锐景摄影&odd

▲展台灵感来自南洋民居楼梯
道具通过推、拉呈现聚拢、展开两种形态,应用于产品展示或品牌活动等使用场景。台面展开时为“展示模式”,日常摆放产品面料;台面聚拢时为“活动模式”,为举办活动预留空间。

▲展台功能灵活多变©锐景摄影

▲核心展示中岛模型©odd
墙面推拉面板暗藏屏幕及收纳柜,用于存放定制桦木海洋板彩色坐凳。

▲台面展开为“展示模式”©锐景摄影

▲台面聚拢为“活动模式”©锐景摄影
中岛道具由彩色桦木海洋板拼接、组合而成。木板表面纹理形状如同海面波浪,展示台面及道具侧面呼应品牌丰富的色彩搭配,经过工艺打磨的原始材质体现了自然的户外感。

▲道具由桦木海洋板拼接、组合©odd


▲木板纹理如同海面波浪 ©锐景摄影
『 品牌文化与城市精神 』
我们在品牌文化与城市精神之间寻找平衡,创造体现当地语境的商业空间。室内大量运用沙石、贝类等源自当地的自然材料,并将品牌元素表现在细节之中。

▲门店室内空间 ©锐景摄影

▲门店东侧剖面©odd
门店入口设置品牌历史墙与可升降挂包架装置,介绍品牌发展历史及产品理念。展示背板由沙石、贝壳和回收弃物组成,并按地质分层的形式叠置。


▲品牌历史墙与可升降挂包架装置©锐景摄影

▲展示背板材质分层©odd

▲地面logo标识©odd
我们利用回收渔网悬挂品牌产品,与深圳本地文化及日常生活相融,唤起深圳旧时渔村的时代记忆。同时将网边的细节设计与背包产品元素相呼应。

▲当地渔民捕鱼场景

▲渔网装置 ©锐景摄影

▲渔网悬挂细节©odd





▲网边局部细节 ©odd
橱窗展示道具由红砖、工字钢、木栈板、帆布等城建废弃物组成,践行品牌环保理念。城市建设废品再利用的设计策略,超越了可持续发展的自然保护层面,更是一种集体记忆的守护,折射出城市的飞速发展。

▲深圳城市化发展的时代记忆

▲橱窗展示道具©锐景摄影

▲橱窗展示道具由城建废弃物组成

▲橱窗展示道具模型©odd

▲局部材质细节©odd

▲品牌logo定制衣架©odd
试衣间延用桦木海洋板作为隔断饰面,传统布帘由帐篷帆布代替,营造身处户外的氛围感。墙面转角利用登山绳做细节处理,增强设计感和品牌记忆。
试衣间旁是整面通高镜面,便于顾客选品、试穿的同时无限延伸室内空间。

▲试衣间©锐景摄影

▲帐篷帆布©odd

▲登山绳转角细节©odd
我们选用贝壳水磨石、真石漆、桦木海洋板等代表深圳本地文化和日常生活的材料组合来搭建新的空间语言、更新品牌标识。我们希望设计不止于表面装饰,更为顾客提供探索空间乐趣的购物体验。

▲全新的购物体验©锐景摄影

▲门店西侧剖面©odd





▲空间材质标识 ©odd
Klättermusen(攀山鼠)深圳店不再是单纯的商业零售,而是充满活力、体现城市精神与文化脉动的公共空间。当设计语言与城市基因产生共鸣,便会孕育出更深层次的空间理念,重塑地域自然肌理、历史沉积与社会意义。

▲新零售的城市共鸣©锐景摄影

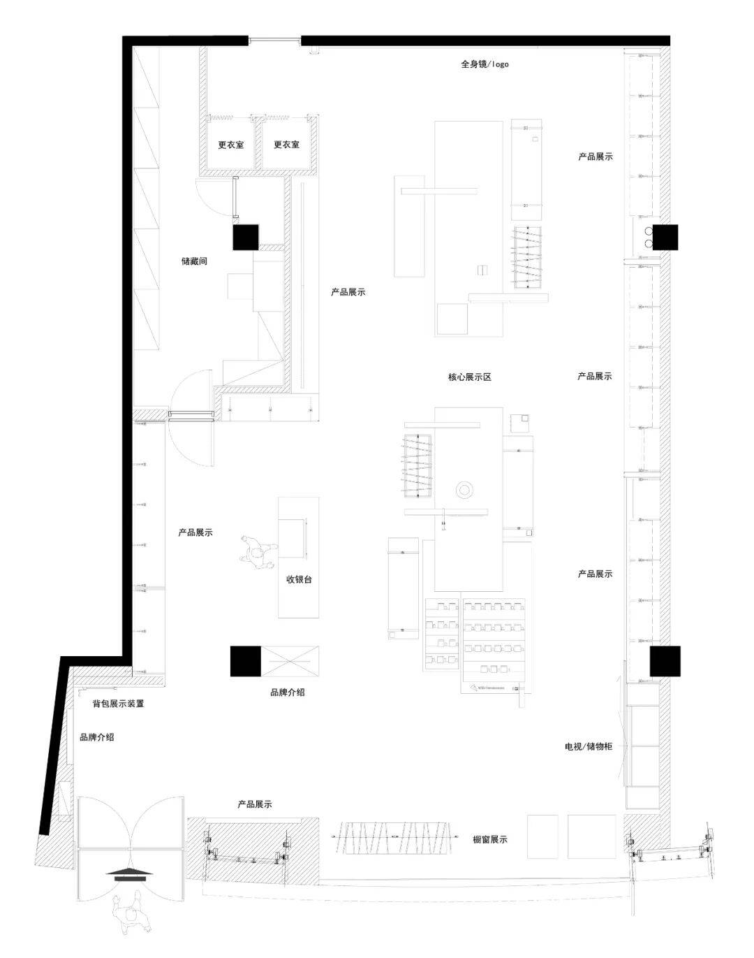
▲旗舰店平面图 ©odd
项目信息
项目名称:Klättermusen(攀山鼠)深圳旗舰店
项目类别:零售空间设计
地点:深圳,广东
面积:178㎡
设计公司:odd设计事务所
设计团队:出口勉,冈本庆三,邸俊巍,李恒
竣工时间:2025.02
主要材料:桦木海洋板、贝壳水磨石、真石漆、再生砖、金属、银镜、实木
摄影:锐景摄影
1条评分金币+22
huozm32831 金币 +22 - 2025-12-27
山庄提示: 道行不够,道券不够?---☆点此充值☆
 
在线jjybzxw

UID: 551814


发帖
220905
金币
684919
道行
2006
原创
2450
奖券
3340
斑龄
42
道券
1233
获奖
0
座驾
设备
摄影级
在线时间: 48023(小时)
注册时间: 2008-10-01
最后登录: 2026-01-23
只看该作者 沙发  发表于: 2025-12-26
攀山鼠深圳旗舰店:新零售空间与城市精神的深度融合
在商业空间设计日益追求独特与创新的当下,Klättermusen(攀山鼠)深圳旗舰店以其独特的设计理念和巧妙的空间布局,成功打造出一个不仅满足商业零售需求,更成为城市精神与文化脉动体现的公共空间。
品牌溯源:理念引领产品设计
Klättermusen(攀山鼠)作为1975年诞生于瑞典的户外运动品牌,始终秉持着“极致性能”、“自然环保”和“山系美学”的核心理念。其产品凭借卓越的性能,能够灵活应用于各种户外场景,为户外爱好者提供可靠的保障。同时,品牌对自然环保的执着追求,体现在从原材料的选择到生产过程的每一个环节,力求将对环境的影响降至最低。而山系美学则赋予产品独特的外观设计,使其在满足功能性的同时,兼具时尚感与艺术感。
空间设计:打破界限,营造实验性氛围
新零售的空间“渗透”
旗舰店选址于深圳核心商圈的人流交汇处,这一地理位置的优越性为品牌与消费者的近距离接触提供了便利。为了体现“城市渗透性”理念,设计团队搭建了外摆区域,通过模糊室内与室外的空间边界,成功建立了门店与城市、与人之间的紧密联结。

外摆区域的设计独具匠心,利用回收木材错落组合成不同高度的座椅,结合景观绿植,营造出一种林中露营的户外场景。这种设计不仅为商区行人提供了一个可稍作停歇的休憩场所,成为门店和品牌体验的室外延伸;同时,也将户外行人的注意力引向室内空间,使其成为橱窗展示的一部分,巧妙地实现了内外空间的互动与融合。
核心展示中岛:功能多样,创意无限
核心展示区是整个旗舰店的一大亮点,由两个独立的道具单元组合而成,包含衣架、展示台、休息座椅等元素。通过不同使用模式的创造,实现了多样场景的应用。核心展示中岛位于空间中轴线上,贯穿橱窗展示、活动区及展示区,成为整个空间的核心枢纽。

道具的设计极具灵活性,通过推、拉可以呈现聚拢、展开两种形态,分别应用于产品展示或品牌活动等不同使用场景。台面展开时为“展示模式”,日常摆放产品面料,方便顾客近距离了解产品的材质和细节;台面聚拢时为“活动模式”,为举办活动预留了充足的空间,增强了空间的互动性和多功能性。

墙面推拉面板暗藏屏幕及收纳柜,用于存放定制桦木海洋板彩色坐凳,既节省了空间,又增加了收纳功能。中岛道具由彩色桦木海洋板拼接、组合而成,木板表面纹理形状如同海面波浪,展示台面及道具侧面呼应品牌丰富的色彩搭配,经过工艺打磨的原始材质体现了自然的户外感,让顾客在购物过程中仿佛置身于大自然之中。
文化融合:品牌与城市的对话
品牌文化与城市精神的平衡
在品牌文化与城市精神之间寻找平衡,是本次设计的重要目标之一。设计团队通过大量运用沙石、贝类等源自当地的自然材料,并将品牌元素巧妙地表现在细节之中,创造出一个体现当地语境的商业空间。

门店入口设置的品牌历史墙与可升降挂包架装置,不仅介绍了品牌发展历史及产品理念,更成为展示城市文化的重要窗口。展示背板由沙石、贝壳和回收弃物组成,并按地质分层的形式叠置,这种独特的设计方式既体现了品牌的环保理念,又唤起了人们对深圳这座城市地质变迁和历史发展的记忆。
旧时记忆的唤醒与传承
利用回收渔网悬挂品牌产品,是本次设计的一大创意亮点。这一设计不仅与深圳本地文化及日常生活相融,唤起了深圳旧时渔村的时代记忆,同时将网边的细节设计与背包产品元素相呼应,增强了品牌与城市文化之间的联系。

橱窗展示道具由红砖、工字钢、木栈板、帆布等城建废弃物组成,践行了品牌环保理念的同时,更是一种集体记忆的守护。这些城市建设废品的再利用,折射出城市的飞速发展,让顾客在欣赏橱窗展示的同时,也能感受到深圳这座城市的独特魅力和历史底蕴。
试衣间:户外氛围的营造
试衣间的设计也独具特色,延用桦木海洋板作为隔断饰面,传统布帘由帐篷帆布代替,营造出一种身处户外的氛围感。墙面转角利用登山绳做细节处理,不仅增强了设计感和品牌记忆,更让顾客在试衣过程中仿佛置身于户外探险的情境之中。试衣间旁的整面通高镜面,便于顾客选品、试穿的同时无限延伸室内空间,增加了空间的开阔感和舒适度。
设计意义:超越商业,重塑空间理念
Klättermusen(攀山鼠)深圳店的设计不止于表面的装饰,更为顾客提供了探索空间乐趣的购物体验。通过选用贝壳水磨石、真石漆、桦木海洋板等代表深圳本地文化和日常生活的材料组合,搭建起新的空间语言、更新品牌标识,使门店成为一个充满活力、体现城市精神与文化脉动的公共空间。

当设计语言与城市基因产生共鸣,便会孕育出更深层次的空间理念。该旗舰店的成功设计,重塑了地域自然肌理、历史沉积与社会意义,为商业空间设计提供了新的思路和借鉴。它告诉我们,商业空间不仅可以是商品交易的场所,更可以成为城市文化传承与创新的重要载体,通过与城市精神的深度融合,实现商业价值与文化价值的双赢。
项目信息总结
项目名称:Klättermusen(攀山鼠)深圳旗舰店
项目类别:零售空间设计
地点:深圳,广东
面积:178㎡
设计公司:odd设计事务所
设计团队:出口勉,冈本庆三,邸俊巍,李恒
竣工时间:2025.02
主要材料:桦木海洋板、贝壳水磨石、真石漆、再生砖、金属、银镜、实木
摄影:锐景摄影

Klättermusen(攀山鼠)深圳旗舰店以其独特的设计理念、巧妙的空间布局和深厚的文化内涵,成为新零售空间设计与城市精神融合的典范之作,值得我们深入品味与借鉴。
1条评分金币+6
huozm32831 金币 +6 - 2025-12-27
如何不发帖就快速得到金币道行
 
快速回复
限120 字节
认真回复加分,灌水扣分~
 
上一个 下一个