切换到宽版
  • 454阅读
  • 1回复

[奇观]浙江夏叶张宅 / STUDIO MOR[34P] [复制链接]

上一主题 下一主题
在线jjybzxw

UID: 551814

 

发帖
223843
金币
709739
道行
2006
原创
2450
奖券
3340
斑龄
42
道券
1233
获奖
0
座驾
设备
摄影级
在线时间: 48314(小时)
注册时间: 2008-10-01
最后登录: 2026-02-03
只看楼主 倒序阅读 使用道具 楼主  发表于: 2025-11-19
— 本帖被 huozm32831 执行加亮操作(2025-11-19) —


© ONE studio
业主对现代主义风格情有独钟,同时沉湎于小众的发烧级影音文化,对生活空间的细节打磨有着极致追求。为此,我们尝试在乡村语境中营造一处既保留田园静谧,又满足现代生活品质的栖居之所。

© ONE studio

© ONE studio
基地原为三栋老屋及前后两处院落。重建后,我们以"庭院"为空间灵魂,在 30 米见方的场地上提出"四季庭院"的构想,将院落划分为花园、草坪、田园与枯山水四个主题区域,分别衔接玄关、客厅、后勤空间与餐厅。

© ONE studio

© ONE studio

© ONE studio
通过墙体的巧妙切分,将墙外的村落、竹林与远山景色,从室内出来,不同院落有不同的借景。建筑形态上,二三层通过横向切分与斜墙设计,形成动态变化的立面。三层采用曲线楼板,营造漂浮感,并通过缓坡屋顶的挑檐应对西晒,提供观景露台。

轴测分析图 © STUDIO MOR
立面材料选择呼应乡村的整体色调,以灰、暖白、绿色石材对应屋顶、土墙与植物,并通过不同的工艺处理使立面在光影与天气中产生丰富变化。

© ONE studio

© ONE studio
一层空间以风车状平面组织,形成室内外连贯的漫步流线。

© ONE studio

© ONE studio

© ONE studio
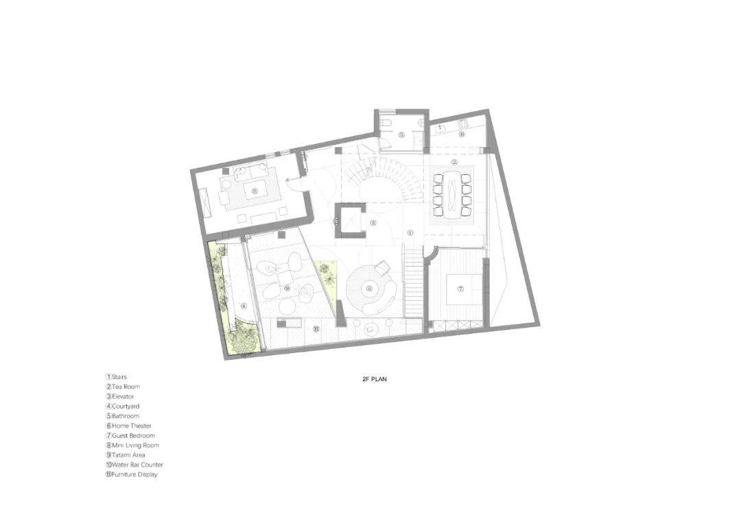
二层为核心休闲区,通过封闭围合塑造“第五个庭院”的意象。茶室、烤火区、榻榻米等多元功能以非正交方式散落布置,营造出步移景异的沉浸体验。

© ONE studio

© ONE studio

© ONE studio

© ONE studio

© ONE studio

© ONE studio

© ONE studio

© ONE studio

© ONE studio

© ONE studio
三层居住区选用浅色木饰面烘托温馨氛围,简约设计的卧室注重与窗外景致的对话,让远山与村落成为日常生活的背景画卷。

© ONE studio

© ONE studio

© ONE studio

© ONE studio
项目虽然由本地乡村施工团队完成,但对工艺细节都做了严格的把控,确保了设计理念的完整呈现。建成后,也超越了业主预期,不仅成为家庭周末团聚的“舒适角落”,也化身朋友聚会与公司团建的社交场所。它证明了乡村建筑可以立足于生活品质的提升,用现代的工艺和设计语言为当地提供新的居住范式。

© ONE studio

© ONE studio

© ONE studio

© ONE studio
项目图纸
总平面图 © STUDIO MOR

一层平面图 © STUDIO MOR

二层平面图 © STUDIO MOR

三层平面图 © STUDIO MOR
剖面图 © STUDIO MOR

剖面图 © STUDIO MOR
剖面图 © STUDIO MOR
剖面图 © STUDIO MOR
项目信息
建筑事务所:STUDIO MOR
项目地址:象山县,浙江省,中国
项目年份:2025 年
项目面积:474 平方米
主创设计师(人名):李乐
设计团队:李雪冰,倪聪儿,章晨晨
施工方:张全
委托方:宁波卓艺家纺有限公司
摄影师:单行线建筑空间摄影
1条评分金币+20
huozm32831 金币 +20 - 2025-11-20
山庄提示: 道行不够,道券不够?---☆点此充值☆
 
在线jjybzxw

UID: 551814


发帖
223843
金币
709739
道行
2006
原创
2450
奖券
3340
斑龄
42
道券
1233
获奖
0
座驾
设备
摄影级
在线时间: 48314(小时)
注册时间: 2008-10-01
最后登录: 2026-02-03
只看该作者 沙发  发表于: 2025-11-19
现代主义语境下的乡村栖居:STUDIO MOR四季庭院住宅设计解析

项目概述
STUDIO MOR在浙江象山县完成的这处住宅项目,是现代主义设计理念与乡村田园生活深度融合的典范。业主对现代主义风格的偏爱与对发烧级影音文化的极致追求,驱动设计团队在30米见方的基地上,通过对三栋老屋及前后院落的重建,打造出一处既保留田园静谧,又满足现代生活品质的栖居之所。项目总面积474平方米,以"四季庭院"为核心概念,将院落划分为花园、草坪、田园与枯山水四个主题区域,实现了空间功能与自然景观的完美融合。

空间布局与庭院设计
四季庭院:空间的灵魂
设计以"庭院"为空间灵魂,提出"四季庭院"构想,将院落细分为四大主题区域:
- 花园:衔接玄关,提供入户第一视觉印象;
- 草坪:连接客厅,作为家庭活动与休憩的核心户外空间;
- 田园:对应后勤空间,保留农耕体验与自然生长感;
- 枯山水:邻近餐厅,营造日式禅意氛围,静谧而富有哲思。

通过墙体的巧妙切分,建筑内部空间与外部院落形成有机渗透。不同院落借景墙外的村落、竹林与远山景色,实现"一步一景"的效果。例如,客厅透过大面积落地窗直面草坪庭院,而餐厅则可俯瞰枯山水庭院,形成丰富的视觉层次。

动态立面与现代形态
建筑形态上,二三层通过横向切分与斜墙设计,打破传统乡村建筑的呆板感,形成动态变化的立面。三层采用曲线楼板设计,营造出轻盈漂浮的视觉效果;缓坡屋顶的挑檐不仅有效应对西晒问题,还为住户提供了观景露台,将远山景色尽收眼底。这种现代主义的几何切割与曲线运用,在保留乡村整体色调的基础上,注入了鲜明的时代特征。

材料选择与光影运用
立面材料的选择严格呼应乡村的整体色调:
- 屋顶:采用灰色材料,简洁大气;
- 土墙:暖白色调,传递质朴感;
- 植物:绿色石材点缀,增强自然气息。

通过不同的工艺处理(如石材表面的粗细打磨、涂料的厚薄差异),使立面在不同光影条件下和天气状况下产生丰富的视觉变化。例如,雨后湿润的石材表面与干燥时的质感截然不同,阳光照射下斜墙形成的阴影图案也为建筑增添了动态美感。这种对材料本真性的尊重和光影的敏感捕捉,体现了现代主义"少即是多"的核心理念。

室内空间设计
一层:风车状平面与漫步流线
一层空间采用风车状平面组织,形成室内外连贯的漫步流线。这种布局打破了传统住宅封闭的空间格局,使各个功能区既相互独立又有机联系。玄关、客厅、后勤空间与餐厅通过庭院自然过渡,行走其间如同在乡村中漫步,步移景异。

二层:核心休闲区与"第五个庭院"
二层为核心休闲区,设计上通过封闭围合的手法塑造出"第五个庭院"的意象。茶室、烤火区、榻榻米等多元功能空间以非正交方式散落布置,摒弃了传统的方正布局,营造出更具趣味性和沉浸式的体验。这种布局方式模糊了室内外界限,使人在室内也能感受到庭院般的开阔与自然。

三层:居住区与自然对话
三层为居住区,选用浅色木饰面烘托温馨氛围。卧室设计简约而不失精致,注重与窗外景致的对话。大面积开窗将远山与村落景观引入室内,使自然成为日常生活的一部分。这种"借景"手法不仅拓展了室内空间感,也让居住者在日常生活中时刻感受自然的变化。

工艺细节与建造实践
尽管项目由本地乡村施工团队完成,但设计团队对工艺细节进行了严格的把控。从墙体砌筑的平整度到木饰面的拼接精度,再到金属构件的焊接质量,都达到了较高的标准。这种对细节的极致追求,确保了设计理念的完整呈现。例如,三层曲线楼板的施工采用了定制模板和精密放样技术,在乡村施工条件下实现了复杂的曲面造型。

项目价值与社会意义
建成后,该项目不仅满足了业主家庭周末团聚的需求,更因其开放的空间布局和完善的设施,成为朋友聚会与公司团建的理想场所。它证明了乡村建筑可以立足于生活品质的提升,用现代的工艺和设计语言为当地提供新的居住范式。项目成功地将现代主义的简洁、理性与乡村生活的诗意、自然融为一体,在保留传统韵味的同时注入了当代生活的活力。

结语
STUDIO MOR的四季庭院住宅项目是一次成功的现代主义乡村实践。通过"四季庭院"的概念、动态变化的立面、精心选择的材料以及对细节的极致打磨,设计团队在有限的基地内创造了一个既满足现代生活品质需求,又深深扎根于乡村文脉的栖居之所。该项目不仅为业主提供了理想的生活空间,也为乡村建筑的发展提供了 valuable 的参考范例,展示了现代主义设计在乡村语境下的无限可能性。
1条评分金币+6
huozm32831 金币 +6 - 2025-11-20
如何不发帖就快速得到金币道行
 
快速回复
限120 字节
认真回复加分,灌水扣分~
 
上一个 下一个